VILLAGE DES LAPONS BAT B SAI104-B03 - Appt 2 pièces cabine (17485)
Présentation
Appartement 2 pièces et coin cabine avec balcon exposé sud/ouest situé dans la résidence Village des Lapons B dans le quartier du Col des Saisies, à proximité des pistes de ski alpin et nordique. Place de parking couverte incluse.
BONS PLANS AVEC LES SAISIES RÉSERVATIONAJOUTEZ AU PANIER VOTRE HÉBERGEMENT ET PROFITEZ DE REMISES DE -10 à 30% ! |
|
| ❄️HIVER : | Forfaits de ski, location de matériel, cours de ski, centre aquatique/spa, sorties en raquettes |
| ☀️ÉTÉ : | Pass loisirs, forfaits VTT, forfaits piéton, randonnées guidées |
Belle résidence confortable dans un esprit montagnard, idéalement située, à proximité des pistes et du domaine nordique.
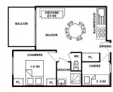
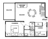
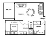
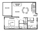
Appartement 2 pièces cabine situé au rez-de-chaussée de la résidence sans ascenseur, orienté sud/ouest avec balcon + place de parking couverte (H.2.05m; L.4.65m; L.2.35 Bât Garage B).
L'appartement se compose d'un séjour avec une banquette gigogne 2x90 et une cuisine équipée ouverte, d'une chambre avec un lit 160, d'une cabine avec lits superposés 2x90 (NB : le lit supérieur d'un lit superposé est interdit aux - 6 ans), d'une salle d'eau et WC séparé.
Cet appartement est classé meublé de tourisme 2 étoiles.
Catégorie ménage: F
Appartement 2 pièces cabine situé au rez-de-chaussée de la résidence sans ascenseur, orienté sud/ouest avec balcon + place de parking couverte (H.2.05m; L.4.65m; L.2.35 Bât Garage B).
L'appartement se compose d'un séjour avec une banquette gigogne 2x90 et une cuisine équipée ouverte, d'une chambre avec un lit 160, d'une cabine avec lits superposés 2x90 (NB : le lit supérieur d'un lit superposé est interdit aux - 6 ans), d'une salle d'eau et WC séparé.
Cet appartement est classé meublé de tourisme 2 étoiles.
Catégorie ménage: F
En Résumé
- Quartiers Les Saisies :
- Quartier du col
- ÉTAGE PAR RAPPORT AU SOL :
- rez de chaussée
- EXTÉRIEUR :
- balcon
- SUPERFICIE :
- 32 m²
- Capacité maximale :
- 6 personnes
- TYPE DE LOGEMENT :
- deux pièces
- ANIMAUX :
- animaux interdits
- Type d'hébergeur :
- Professionnel
Descriptif détaillé
- SÉJOUR :
- 1 banquette gigogne 2 pers
- CABINE :
- 2 lits superposés
- CHAMBRE 1 :
- 1 lit(s) double(s) 160 cm
- SALLE(S) DE BAINS :
- 1 salle(s) de bains avec douche
- SANITAIRES :
- 1 WC séparé(s)
Équipements
- ÉQUIPEMENTS CUISINE :
- plaques vitrocéramiques
- lave-vaisselle
- réfrigérateur
- ÉQUIPEMENTS :
- casier à skis
- aspirateur
- STATIONNEMENT :
- parking couvert inclus
- parking couvert en supplément
- parking privé extérieur
- parking public extérieur
Services
- ASSURANCE ANNULATION :
- Pour plus de sérénité, nous vous conseillons de souscrire à notre assurance annulation proposée au moment de votre réservation.
Localisation
Destination
118 chemin de l'echellier
Appartement 3 - RDC - Bâtiment B
73620
LES SAISIES
Coordonnées GPS
Latitude : 45.75914
Longitude : 6.533048
- DISTANCES :
- 100 m du centre station Les Saisies
Tarifs & Disponibilités
Avis
Note :
(7 avis)
4,29
/ 5
Juillet 2025
Delphine
De 45 à 55 ans
En famille
Note :
5
/ 5
Aménagement intérieur (décoration, mobilier...)
Equipements (vaisselle et ustensiles de cuisine, électroménager...)
Confort de la literie
Entretien/ propreté
Situation géographique
Rapport qualité-prix
Avis écrit le 22/07/2025
Avril 2025
Julien
De 35 à 44 ans
En famille
Note :
3
/ 5
Aménagement intérieur (décoration, mobilier...)
Equipements (vaisselle et ustensiles de cuisine, électroménager...)
Confort de la literie
Entretien/ propreté
Situation géographique
Rapport qualité-prix
Avis écrit le 14/04/2025
Avis par type de profil





























