VILLAGE BAT 5-6 SAI407-506 - Appt Studio (17613)
Présentation
Studio avec alcôve doté d'un balcon exposé sud situé dans la résidence Village 5-6 en centre station à proximité des pistes de ski et rassemblement ESF/ESI et des commerces.
BONS PLANS AVEC LES SAISIES RÉSERVATIONAJOUTEZ AU PANIER VOTRE HÉBERGEMENT ET PROFITEZ DE REMISES DE -10 à 30% ! |
|
| ❄️HIVER : | Forfaits de ski, location de matériel, cours de ski, centre aquatique/spa, sorties en raquettes |
| ☀️ÉTÉ : | Pass loisirs, forfaits VTT, forfaits piéton, randonnées guidées |
Résidence proche centre station, proche des commerces et en front de neige
La résidence est exposée sud, face au Mont Bisanne.
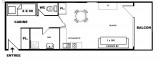
Appartement studio alcôve situé au rez de chaussée surélevé de la résidence (1 étage à descendre), orienté sud avec balcon.
L'appartement se compose d'une kitchenette équipée, d'un séjour avec un canapé 160, d'une alcôve avec des lits superposés 2x90, d'une salle d'eau et d'un wc séparé.
(NB: le lit supérieur d'un lit superposé est interdit aux - de 6 ans)
Location classée meublé de tourisme 2*.
Catégorie ménage: C
La résidence est exposée sud, face au Mont Bisanne.
Appartement studio alcôve situé au rez de chaussée surélevé de la résidence (1 étage à descendre), orienté sud avec balcon.
L'appartement se compose d'une kitchenette équipée, d'un séjour avec un canapé 160, d'une alcôve avec des lits superposés 2x90, d'une salle d'eau et d'un wc séparé.
(NB: le lit supérieur d'un lit superposé est interdit aux - de 6 ans)
Location classée meublé de tourisme 2*.
Catégorie ménage: C
En Résumé
- EXPOSITION :
- sud
- Quartiers Les Saisies :
- Centre station
- ÉTAGE PAR RAPPORT AU SOL :
- rez de chaussée
- EXTÉRIEUR :
- balcon
- SUPERFICIE :
- 27 m²
- Capacité maximale :
- 4 personnes
- TYPE DE LOGEMENT :
- une pièce
- ANIMAUX :
- animaux interdits
- VUE :
- montagne
- Type d'hébergeur :
- Professionnel
Descriptif détaillé
- SÉJOUR :
- 1 canapé lit convertible 2 personnes
- Alcôve :
- 2 lits superposés
- SALLE(S) DE BAINS :
- 1 salle(s) de bains avec douche
- SANITAIRES :
- 1 WC séparé(s)
Équipements
- ÉQUIPEMENTS CUISINE :
- four
- appareil à fondue
- ÉQUIPEMENTS :
- casier à skis
- aspirateur
- STATIONNEMENT :
- parking couvert en supplément
Services
- ASSURANCE ANNULATION :
- Pour plus de sérénité, nous vous conseillons de souscrire à notre assurance annulation proposée au moment de votre réservation.
Localisation
Destination
380 chemin du cristal
Appartement 506 - RCH - Bâtiment 5
73620
LES SAISIES
Coordonnées GPS
Latitude : 45.756153
Longitude : 6.539687
Tarifs & Disponibilités
Avis
Note :
(4 avis)
4
/ 5
Février 2025
François
Plus de 55 ans
En famille
Note :
4
/ 5
Aménagement intérieur (décoration, mobilier...)
Equipements (vaisselle et ustensiles de cuisine, électroménager...)
Confort de la literie
Entretien/ propreté
Situation géographique
Rapport qualité-prix
Avis écrit le 03/02/2025
Janvier 2025
JEAN-MARC
Plus de 55 ans
En couple
Note :
4
/ 5
Aménagement intérieur (décoration, mobilier...)
Equipements (vaisselle et ustensiles de cuisine, électroménager...)
Confort de la literie
Entretien/ propreté
Situation géographique
Rapport qualité-prix
Avis écrit le 20/01/2025
Avis par type de profil



























