VILLAGE BAT 3 SAI407-315 - Appt Studio (17531)
- 1
Présentation
Studio avec alcôve doté d'un balcon exposé sud situé dans la résidence Village 3 en centre station à proximité des pistes de ski et rassemblement ESF et des commerces.
BONS PLANS AVEC LES SAISIES RÉSERVATIONAJOUTEZ AU PANIER VOTRE HÉBERGEMENT ET PROFITEZ DE REMISES DE -10 à 30% ! |
|
| ❄️HIVER : | Forfaits de ski, location de matériel, cours de ski, centre aquatique/spa, sorties en raquettes |
| ☀️ÉTÉ : | Pass loisirs, forfaits VTT, forfaits piéton, randonnées guidées |
Résidence proche centre station, proche des commerces.
La résidence est exposée sud, face au Mont Bisanne
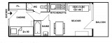
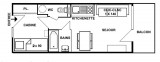
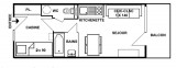
Appartement studio alcôve situé au 2ème étage de la résidence (1 étage et demi à monter), orienté sud, avec balcon.
L'appartement se compose d'une kitchenette équipée, d'un séjour avec canapé 140, d'une alcôve avec 2 lits superposés (2x90) (NB: le lit supérieur d'un lit superposé est interdit aux - de 6 ans) d'une salle d'eau et d'un WC séparé.
Location classée meublé de tourisme 1*.
Catégorie ménage: B
La résidence est exposée sud, face au Mont Bisanne
Appartement studio alcôve situé au 2ème étage de la résidence (1 étage et demi à monter), orienté sud, avec balcon.
L'appartement se compose d'une kitchenette équipée, d'un séjour avec canapé 140, d'une alcôve avec 2 lits superposés (2x90) (NB: le lit supérieur d'un lit superposé est interdit aux - de 6 ans) d'une salle d'eau et d'un WC séparé.
Location classée meublé de tourisme 1*.
Catégorie ménage: B
En Résumé
- EXPOSITION :
- sud
- Quartiers Les Saisies :
- Centre station
- ÉTAGE PAR RAPPORT AU SOL :
- 2ème étage
- EXTÉRIEUR :
- balcon
- SUPERFICIE :
- 22 m²
- Capacité maximale :
- 4 personnes
- TYPE DE LOGEMENT :
- une pièce
- ANIMAUX :
- animaux interdits
- Type d'hébergeur :
- Professionnel
Descriptif détaillé
- SÉJOUR :
- 1 canapé lit convertible 2 personnes
- Alcôve :
- 2 lits superposés
- LITERIE :
- 2 couette(s) simple(s)
- 1 couette(s) double(s)
- 6 oreiller(s)
- SALLE(S) DE BAINS :
- 1 salle(s) de bains avec baignoire
- SANITAIRES :
- 1 WC séparé(s)
Équipements
- ÉQUIPEMENTS CUISINE :
- appareil à fondue
- ÉQUIPEMENTS :
- casier à skis
- aspirateur
- STATIONNEMENT :
- parking couvert en supplément
Services
- ASSURANCE ANNULATION :
- Pour plus de sérénité, nous vous conseillons de souscrire à notre assurance annulation proposée au moment de votre réservation.
Localisation
Destination
69 rue des moliettes
Appartement 315 - 2 ème étage - Batiment 3
73620
LES SAISIES
Coordonnées GPS
Latitude : 45.756427
Longitude : 6.539817
Tarifs & Disponibilités
Avis
Note :
(4 avis)
4,25
/ 5
Janvier 2025
laurent
De 45 à 55 ans
En famille
Note :
4
/ 5
Manque de porte manteaux. Casier ski très petit
Aménagement intérieur (décoration, mobilier...)
Equipements (vaisselle et ustensiles de cuisine, électroménager...)
Confort de la literie
Entretien/ propreté
Situation géographique
Rapport qualité-prix
Avis écrit le 06/01/2025
21/02/2025
15h01
Elisa Maitre a répondu
Merci d'avoir pris le temps de partager votre retour. Nous avons bien pris en compte votre remarque et l'avons transmise au propriétaire du logement afin qu'il puisse en tenir compte. Votre avis nous aide à améliorer l'expérience de nos voyageurs. Nous espérons avoir l'occasion de vous accueillir à nouveau aux Saisies ! 😊
Mars 2024
Luc
De 45 à 55 ans
En famille
Note :
4
/ 5
Aménagement intérieur (décoration, mobilier...)
Equipements (vaisselle et ustensiles de cuisine, électroménager...)
Confort de la literie
Entretien/ propreté
Situation géographique
Rapport qualité-prix
Avis écrit le 18/03/2024
Avis par type de profil

































