VILLAGE BAT 3 SAI407-313 - Appt 3 pièces (17530)
Présentation
Appartement 2 chambres et mezzanine doté d'un balcon exposé sud situé dans la résidence Village 3 en centre station à proximité des pistes de ski et rassemblement ESF et des commerces.
BONS PLANS AVEC LES SAISIES RÉSERVATIONAJOUTEZ AU PANIER VOTRE HÉBERGEMENT ET PROFITEZ DE REMISES DE -10 à 30% ! |
|
| ❄️HIVER : | Forfaits de ski, location de matériel, cours de ski, centre aquatique/spa, sorties en raquettes |
| ☀️ÉTÉ : | Pass loisirs, forfaits VTT, forfaits piéton, randonnées guidées |
Résidence proche centre station, proche des commerces.
La résidence est exposée sud, face au Mont Bisanne
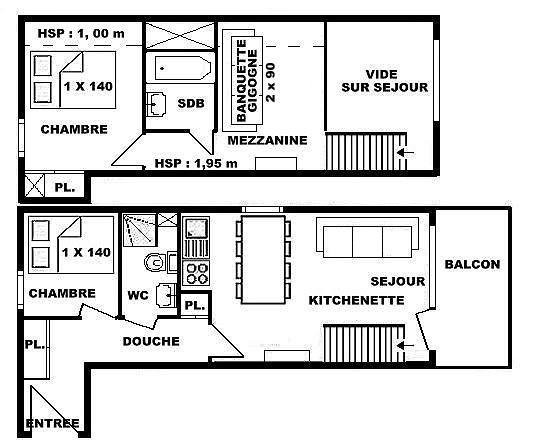
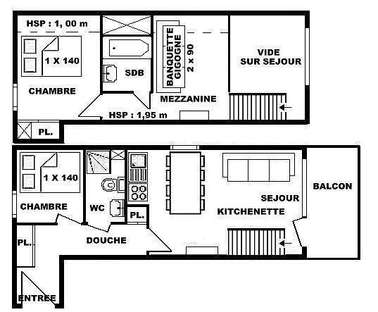
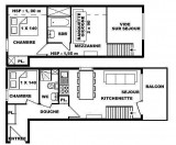
Appartement 3 pièces mezzanine, situé au 3ème étage (1 seul étage à monter), de la résidence sans ascenseur, orienté SUD avec balcon.
L'appartement se compose d'une kitchenette équipée, d'un séjour , d'une chambre avec 1 lit 2 personnes, d'une salle d'eau avec wc non séparé, à l'étage une mezzanine avec une banquette gigogne 2x80, une salle de bains et d'une chambre avec lit 2 personnes.
Location classée meublé de tourisme 2*.
Catégorie ménage: G
La résidence est exposée sud, face au Mont Bisanne
Appartement 3 pièces mezzanine, situé au 3ème étage (1 seul étage à monter), de la résidence sans ascenseur, orienté SUD avec balcon.
L'appartement se compose d'une kitchenette équipée, d'un séjour , d'une chambre avec 1 lit 2 personnes, d'une salle d'eau avec wc non séparé, à l'étage une mezzanine avec une banquette gigogne 2x80, une salle de bains et d'une chambre avec lit 2 personnes.
Location classée meublé de tourisme 2*.
Catégorie ménage: G
En Résumé
- EXPOSITION :
- sud
- Quartiers Les Saisies :
- Centre station
- ÉTAGE PAR RAPPORT AU SOL :
- 2ème étage
- EXTÉRIEUR :
- balcon
- SUPERFICIE :
- 50 m²
- Capacité maximale :
- 6 personnes
- TYPE DE LOGEMENT :
- trois pièces
- ANIMAUX :
- animaux interdits
- Type d'hébergeur :
- Professionnel
Descriptif détaillé
- CHAMBRE 1 :
- 1 lit(s) double(s) 140 cm
- CHAMBRE 2 :
- 1 lit(s) double(s) 140 cm
- MEZZANINE :
- 1 banquette(s) gigogne(s) 2 pers
- SALLE(S) DE BAINS :
- 1 salle(s) de bains avec baignoire
- 1 salle(s) de bains avec douche
- SANITAIRES :
- 1 WC dans salle de bains
Équipements
- ÉQUIPEMENTS :
- casier à skis
- STATIONNEMENT :
- parking couvert en supplément
Services
- ASSURANCE ANNULATION :
- Pour plus de sérénité, nous vous conseillons de souscrire à notre assurance annulation proposée au moment de votre réservation.
Destination
69 rue des moliettes
Appartement 313 - 2 ème étage - Bâtiment 3
73620
LES SAISIES
Coordonnées GPS
Latitude : 45.756427
Longitude : 6.539817
Tarifs & Disponibilités
Avis
Note :
(1 avis)
4
/ 5
Mars 2025
Hugues
De 45 à 55 ans
En famille
Note :
4
/ 5
Bien agencé et bien situé
Aménagement intérieur (décoration, mobilier...)
Equipements (vaisselle et ustensiles de cuisine, électroménager...)
Confort de la literie
Entretien/ propreté
Situation géographique
Rapport qualité-prix
Avis écrit le 05/03/2025
06/03/2025
11h17
Elisa Maitre a répondu
Un grand merci pour votre retour positif ! Nous sommes ravis d’apprendre que vous avez apprécié votre séjour. Votre satisfaction est notre plus belle récompense. Au plaisir de vous accueillir à nouveau aux Saisies ! 😊
Avis par type de profil

































