VILLAGE BAT 2 SAI407-235 - Appt Studio / mezz (17526)
Présentation
Studio avec mezzanine doté d'un balcon exposé sud situé dans la résidence Village 2 en centre station à proximité des pistes de ski et rassemblement ESF et des commerces.
BONS PLANS AVEC LES SAISIES RÉSERVATIONAJOUTEZ AU PANIER VOTRE HÉBERGEMENT ET PROFITEZ DE REMISES DE -10 à 30% ! |
|
| ❄️HIVER : | Forfaits de ski, location de matériel, cours de ski, centre aquatique/spa, sorties en raquettes |
| ☀️ÉTÉ : | Pass loisirs, forfaits VTT, forfaits piéton, randonnées guidées |
Résidence proche centre station, proche des commerces.
La résidence est exposée sud, face au Mont Bisanne
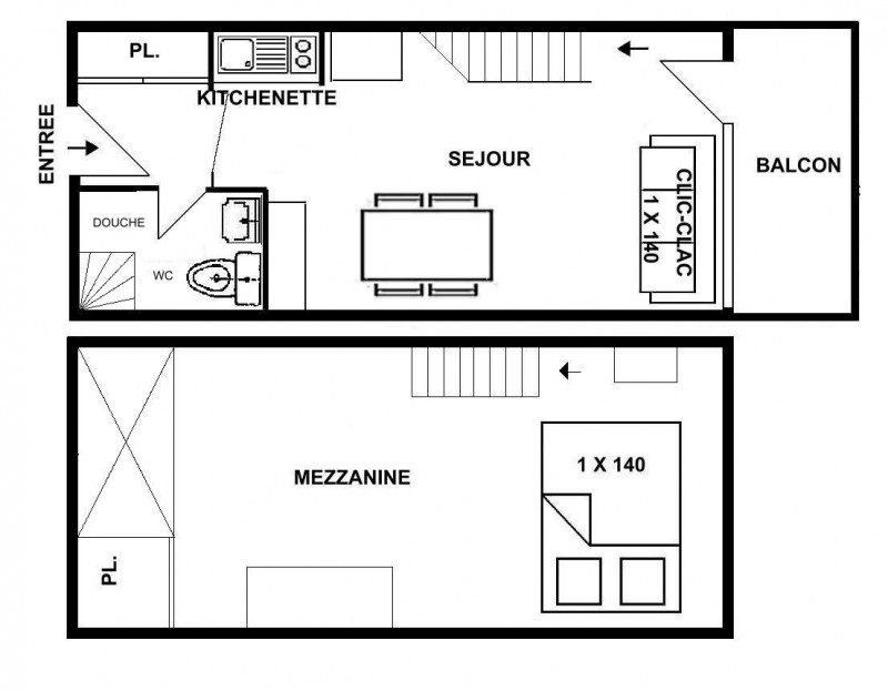
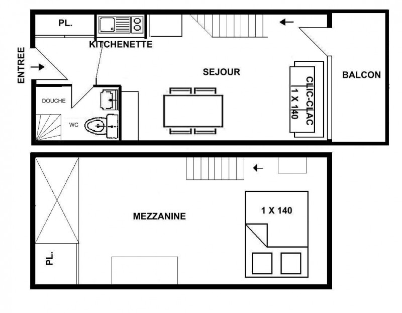
Appartement studio mezzanine au 3ème étage de la résidence (2 étages à monter), orienté sud, avec balcon.
L'appartement se compose d'une kitchenette équipée, d'un séjour avec canapé 140, d'une chambre borgne avec un lit en 140 et d'une salle d'eau WC non séparé.
Location classée meublé de tourisme 2*.
Catégorie ménage: C
Animaux de compagnie acceptés avec un supplément de 39,00 €
La résidence est exposée sud, face au Mont Bisanne
Appartement studio mezzanine au 3ème étage de la résidence (2 étages à monter), orienté sud, avec balcon.
L'appartement se compose d'une kitchenette équipée, d'un séjour avec canapé 140, d'une chambre borgne avec un lit en 140 et d'une salle d'eau WC non séparé.
Location classée meublé de tourisme 2*.
Catégorie ménage: C
Animaux de compagnie acceptés avec un supplément de 39,00 €
En Résumé
- EXPOSITION :
- sud
- Quartiers Les Saisies :
- Centre station
- ÉTAGE PAR RAPPORT AU SOL :
- 3ème étage
- EXTÉRIEUR :
- balcon
- SUPERFICIE :
- 31 m²
- Capacité maximale :
- 4 personnes
- TYPE DE LOGEMENT :
- une pièce
- ANIMAUX :
- animaux acceptés
- animaux admis avec supplément
- petits animaux acceptés
- Animaux acceptés sous réserve d'accord du propriétaire
- Type d'hébergeur :
- Professionnel
Descriptif détaillé
- SÉJOUR :
- 1 canapé lit convertible 2 personnes
- MEZZANINE :
- 1 lit(s) double(s) 140 cm
- LITERIE :
- 6 couette(s) simple(s)
- 8 couverture(s) simple(s)
- 6 oreiller(s)
- 4 traversin(s)
- SALLE(S) DE BAINS :
- 1 salle(s) de bains avec douche
- SANITAIRES :
- 1 WC dans salle de bains
Équipements
- ÉQUIPEMENTS CUISINE :
- four
- ÉQUIPEMENTS :
- casier à skis
- aspirateur
- STATIONNEMENT :
- parking couvert en supplément
Services
- ASSURANCE ANNULATION :
- Pour plus de sérénité, nous vous conseillons de souscrire à notre assurance annulation proposée au moment de votre réservation.
Localisation
Destination
101 rue des moliettes
Appartement 235 - 3ème étage - Batiment
73620
LES SAISIES
Coordonnées GPS
Latitude : 45.756526
Longitude : 6.539605
Tarifs & Disponibilités
Avis
Note :
(3 avis)
4,67
/ 5
Mars 2025
SOURISSEAU
Plus de 55 ans
En couple
Note :
4
/ 5
Aménagement intérieur (décoration, mobilier...)
Equipements (vaisselle et ustensiles de cuisine, électroménager...)
Confort de la literie
Entretien/ propreté
Situation géographique
Rapport qualité-prix
Avis écrit le 18/03/2025
Mars 2025
Jean-Paul
Plus de 55 ans
En famille
Note :
5
/ 5
L’appartement avait plus de literie que ne l’indiquait le descriptif
Aménagement intérieur (décoration, mobilier...)
Equipements (vaisselle et ustensiles de cuisine, électroménager...)
Confort de la literie
Entretien/ propreté
Situation géographique
Rapport qualité-prix
Avis écrit le 03/03/2025
Avis par type de profil





























