Studio - MONT BLANC B (MTB213)
Présentation
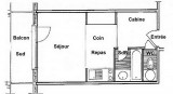
Studio cabine avec balcon exposé sud. Situé dans la résidence Mont-Blanc B dans le centre station à 100 des commerces et à proximité des pistes.

- Appartement type STUDIO CABINE (réference: MTB213)
-Classe en meublé de tourisme 1 étoile
- Surface : 24.30 m², + BEAU BALCON SUD : 5 m² env,
- Etage : 2 ème,
- Accès : côté nord direct au 2ème, entrée de gauche,
- Couchages : 4
- séjour : 1 convertible clic clac 140,
- cabine : 2 lits superposés 90,
- Salle de bains : baignoire, WC séparés,
- Exposition : plein sud avec JOLIE VUE sur les pistes et le massif du BEAUFORTAIN,
- Equipements particuliers : télévision écran plat, combi-four Samsung, plaque vitrocéramique, cafetière Nespresso, cocotte-minute, salon de jardin, appareil à raclette...
- LITERIE :1 couverture 140, 2 couvertures 90, 3 oreillers, 1 oreiller rectangulaire, 1 traversin 140.
- REMARQUES
- Appartement tout équipé, ( non fourni : draps et linge de maison ), Produits entretiens non fournis
- Un casier à skis est à votre disposition.
- Animaux tolérés.
-Classe en meublé de tourisme 1 étoile
- Surface : 24.30 m², + BEAU BALCON SUD : 5 m² env,
- Etage : 2 ème,
- Accès : côté nord direct au 2ème, entrée de gauche,
- Couchages : 4
- séjour : 1 convertible clic clac 140,
- cabine : 2 lits superposés 90,
- Salle de bains : baignoire, WC séparés,
- Exposition : plein sud avec JOLIE VUE sur les pistes et le massif du BEAUFORTAIN,
- Equipements particuliers : télévision écran plat, combi-four Samsung, plaque vitrocéramique, cafetière Nespresso, cocotte-minute, salon de jardin, appareil à raclette...
- LITERIE :1 couverture 140, 2 couvertures 90, 3 oreillers, 1 oreiller rectangulaire, 1 traversin 140.
- REMARQUES
- Appartement tout équipé, ( non fourni : draps et linge de maison ), Produits entretiens non fournis
- Un casier à skis est à votre disposition.
- Animaux tolérés.
En Résumé
- EXPOSITION :
- sud
- Quartiers Les Saisies :
- Centre station
- ÉTAGE PAR RAPPORT AU SOL :
- 2ème étage
- SUPERFICIE :
- 24.3 m²
- Capacité maximale :
- 4 personnes
- ANIMAUX :
- animaux acceptés
- Type de logement :
- Studio
- Type d'hébergeur :
- Professionnel
Descriptif détaillé
- SÉJOUR :
- 1 canapé(s) clic-clac 2 pers
- CABINE :
- 2 lits superposés
- LITERIE :
- 4 oreiller(s)
- 1 traversin(s)
- SALLE(S) DE BAINS :
- 1 salle(s) de bains avec baignoire
- SANITAIRES :
- 1 WC séparé(s)
Équipements
- ÉQUIPEMENTS CUISINE :
- four multi fonctions
- plaques vitrocéramiques
- réfrigérateur
- appareil à raclette
- cafetière à capsules
- ÉQUIPEMENTS :
- casier à skis
Services
- ASSURANCE ANNULATION :
- Pour plus de sérénité, nous vous conseillons de souscrire à notre assurance annulation proposée au moment de votre réservation.
- SERVICES EN SUPPLÉMENT :
- location draps
- location linge de toilette
- ménage de fin de séjour
- lits faits à l'arrivée
Localisation
Destination
Rue des Moliettes
73620
LES SAISIES
Coordonnées GPS
Latitude : 45.756632
Longitude : 6.538754



























