Studio - MONT BLANC B (MTB212)
Présentation
Studio cabine avec balcon exposé sud. Situé dans la résidence Mont-Blanc B dans le centre station à 100 des commerces et à proximité des pistes.
Réservable uniquement en Dimanche - Dimanche.
Réservable uniquement en Dimanche - Dimanche.

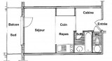
Appartement type studio cabine
- Surface : 24.30 m², + BEAU BALCON SUD : 5 m² env,
- Etage : 2 ème,
- Accès : direct au 2ème, entrée de gauche,
- Couchages : 4
- séjour : 1 convertible 140,
- cabine séparée du séjour par un rideau : 2 lits superposés 90,
- Salle de bains : baignoire, WC séparés,
- Exposition : plein sud avec vue sur les pistes et le massif du BEAUFORTAIN,
- Equipements particuliers : télévision, grille-pain, four micro-onde, four traditionnel, cocotte-minute, cafetière électrique, mixer...
- LITERIE : 4 couvertures 90, 2 couvertures 140, 6 oreillers.
- REMARQUES
- Appartement tout équipé, ( non fourni : draps et linge de maison ), Produits entretiens non fournis
- Un casier à skis est à votre disposition.
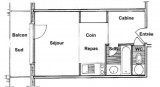
- Surface : 24.30 m², + BEAU BALCON SUD : 5 m² env,
- Etage : 2 ème,
- Accès : direct au 2ème, entrée de gauche,
- Couchages : 4
- séjour : 1 convertible 140,
- cabine séparée du séjour par un rideau : 2 lits superposés 90,
- Salle de bains : baignoire, WC séparés,
- Exposition : plein sud avec vue sur les pistes et le massif du BEAUFORTAIN,
- Equipements particuliers : télévision, grille-pain, four micro-onde, four traditionnel, cocotte-minute, cafetière électrique, mixer...
- LITERIE : 4 couvertures 90, 2 couvertures 140, 6 oreillers.
- REMARQUES
- Appartement tout équipé, ( non fourni : draps et linge de maison ), Produits entretiens non fournis
- Un casier à skis est à votre disposition.
En Résumé
- EXPOSITION :
- sud
- Quartiers Les Saisies :
- Centre station
- ÉTAGE PAR RAPPORT AU SOL :
- 2ème étage
- EXTÉRIEUR :
- balcon
- SUPERFICIE :
- 24.3 m²
- Capacité maximale :
- 4 personnes
- ANIMAUX :
- Animaux acceptés sous réserve d'accord du propriétaire
- Type de logement :
- Studio
- Type d'hébergeur :
- Professionnel
Descriptif détaillé
- SÉJOUR :
- 1 banquette(s) BZ 2 pers
- CABINE :
- 2 lits superposés
- LITERIE :
- 4 oreiller(s)
- SALLE(S) DE BAINS :
- 1 salle(s) de bains avec baignoire
- SANITAIRES :
- 1 WC séparé(s)
Équipements
- ÉQUIPEMENTS CUISINE :
- mini four
- plaques électriques
- plaques de cuisson
- réfrigérateur
- grille-pain
- cocotte-minute
- ÉQUIPEMENTS :
- casier à skis
Services
- ASSURANCE ANNULATION :
- Pour plus de sérénité, nous vous conseillons de souscrire à notre assurance annulation proposée au moment de votre réservation.
- SERVICES EN SUPPLÉMENT :
- location draps
- location linge de toilette
- ménage de fin de séjour
- lits faits à l'arrivée
Localisation
Destination
Rue des Moliettes
73620
LES SAISIES
Coordonnées GPS
Latitude : 45.756632
Longitude : 6.538754
- DISTANCES :
- 80 m du centre station Les Saisies
- 100 m des pistes de ski alpin
- 600 m des pistes de ski de fond
- 70 m d'un arrêt navette (en hiver)
Tarifs & Disponibilités
Avis
Note :
(2 avis)
4,5
/ 5
Mars 2024
Stephane
De 45 à 55 ans
En couple
Note :
5
/ 5
Aménagement intérieur (décoration, mobilier...)
Equipements (vaisselle et ustensiles de cuisine, électroménager...)
Confort de la literie
Entretien/ propreté
Situation géographique
Rapport qualité-prix
Avis écrit le 02/04/2024
Mars 2024
patrice
Plus de 55 ans
En couple
Note :
4
/ 5
Aménagement intérieur (décoration, mobilier...)
Equipements (vaisselle et ustensiles de cuisine, électroménager...)
Confort de la literie
Entretien/ propreté
Situation géographique
Rapport qualité-prix
Avis écrit le 27/03/2024
Avis par type de profil































