Studio - GRAND MONT 3 (GM3304)
Présentation
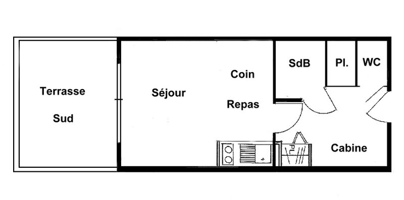
Studio cabine situé dans la résidence Grand Mont 3, au centre de la station des Saisies. Accès aux commerces à 200m et situé à 100m des pistes de ski.
- Accès : direct par la rue des périots
- Appartement type STUDIO CABINE. (réference: GM3304)
- Surface : 22m² env, SUPERBE TERRASSE PLEIN SUD : 9 m² env,
- Etage : rez de chaussée surélevé,
- Couchages : 4
- séjour : 1 banquette gigogne ( possibilité lit double ou 2 couchages simples),
- cabine séparée du séjour par une porte : 2 lits superposés 80,
- Salle de bains : douche, WC séparés,
- Exposition : plein sud avec vue dégagée sur les pistes et le massif du BEAUFORTAIN ,
- Equipements particuliers : télévision, four rowenta, + four micro ondes, plaques vitro céramique, cafetière électrique, mixer / batteur, grille pain, bouilloire électrique, cocotte minute, salon de jardin...
- LITERIE : 8 couvertures, 4 oreillers.
- REMARQUES
- Appartement tout équipé, ( non fourni : draps et linge de maison ), Produits entretiens non fournis
- Un casier à skis est à votre disposition .
- Appartement type STUDIO CABINE. (réference: GM3304)
- Surface : 22m² env, SUPERBE TERRASSE PLEIN SUD : 9 m² env,
- Etage : rez de chaussée surélevé,
- Couchages : 4
- séjour : 1 banquette gigogne ( possibilité lit double ou 2 couchages simples),
- cabine séparée du séjour par une porte : 2 lits superposés 80,
- Salle de bains : douche, WC séparés,
- Exposition : plein sud avec vue dégagée sur les pistes et le massif du BEAUFORTAIN ,
- Equipements particuliers : télévision, four rowenta, + four micro ondes, plaques vitro céramique, cafetière électrique, mixer / batteur, grille pain, bouilloire électrique, cocotte minute, salon de jardin...
- LITERIE : 8 couvertures, 4 oreillers.
- REMARQUES
- Appartement tout équipé, ( non fourni : draps et linge de maison ), Produits entretiens non fournis
- Un casier à skis est à votre disposition .
En Résumé
- EXPOSITION :
- sud
- Quartiers Les Saisies :
- Centre station
- ÉTAGE PAR RAPPORT AU SOL :
- rez de chaussée
- SUPERFICIE :
- 22 m²
- Capacité maximale :
- 4 personnes
- ANIMAUX :
- animaux acceptés
- Type de logement :
- Studio
- Type d'hébergeur :
- Professionnel
Descriptif détaillé
- LITERIE :
- 8.00 couverture(s) simple(s)
- 8.00 couverture(s) double(s)
Équipements
- ÉQUIPEMENTS CUISINE :
- grille-pain
Services
- ASSURANCE ANNULATION :
- Pour plus de sérénité, nous vous conseillons de souscrire à notre assurance annulation proposée au moment de votre réservation.
- SERVICES EN SUPPLÉMENT :
- location draps
- location linge de toilette
- ménage de fin de séjour
- lits faits à l'arrivée
Localisation
Destination
221 Avenue des Cimes
73620
LES SAISIES
Coordonnées GPS
Latitude : 45.758526
Longitude : 6.537981

























