Studio - GRAND MONT 1 (GM1101)
Présentation
Studio cabine montagne situé dans la résidence Grand Mont 1 au centre de la station des Saisies. Situé à 200m des pistes de ski et des commerces.
|
|||||||
- Accès : par l'avenue des JO escalier de 2 étages, par la rue des périots 50 m,
- BEL APPARTEMENT type STUDIO CABINE. (réference: GM1101)
- Bien conçu avec du parquet, très ensoleillé, bien équipé,
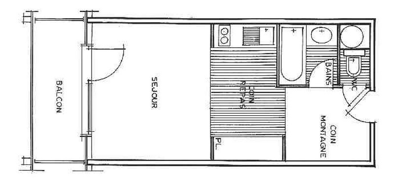
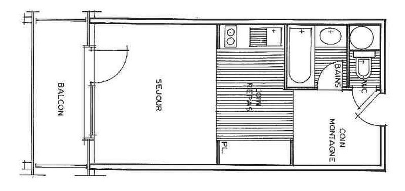
- Surface : 23 m², balcon sud : 5 m²,
- Etage : 1er (au-dessus des commerces), équivalent à un 2ème étage,
- Couchages : 4
- séjour : 1 convertible shogun 140,
- cabine (séparée du séjour par un rideau) : 2 lits superposés 80,
- Salle de bains : douche, WC séparés,
- Exposition : plein sud avec vue sur les pistes et le massif du BEAUFORTAIN ,
- Equipements particuliers : Télévision, Four,Four micro ondes, cocotte minute, appareil à raclette, cafetière électrique, salon de jardin...
- LITERIE : 5 oreillers, 3 couettes 90, 1couette 140.
- REMARQUES
- Appartement tout équipé, ( non fourni : draps et linge de maison ),
- Produits entretiens non fournis
- Animaux refusés,
- Un casier à skis est à votre disposition.
- BEL APPARTEMENT type STUDIO CABINE. (réference: GM1101)
- Bien conçu avec du parquet, très ensoleillé, bien équipé,
- Surface : 23 m², balcon sud : 5 m²,
- Etage : 1er (au-dessus des commerces), équivalent à un 2ème étage,
- Couchages : 4
- séjour : 1 convertible shogun 140,
- cabine (séparée du séjour par un rideau) : 2 lits superposés 80,
- Salle de bains : douche, WC séparés,
- Exposition : plein sud avec vue sur les pistes et le massif du BEAUFORTAIN ,
- Equipements particuliers : Télévision, Four,Four micro ondes, cocotte minute, appareil à raclette, cafetière électrique, salon de jardin...
- LITERIE : 5 oreillers, 3 couettes 90, 1couette 140.
- REMARQUES
- Appartement tout équipé, ( non fourni : draps et linge de maison ),
- Produits entretiens non fournis
- Animaux refusés,
- Un casier à skis est à votre disposition.
En Résumé
- EXPOSITION :
- sud
- Quartiers Les Saisies :
- Centre station
- ÉTAGE PAR RAPPORT AU SOL :
- 1er étage
- EXTÉRIEUR :
- balcon
- SUPERFICIE :
- 23 m²
- Capacité maximale :
- 4 personnes
- ANIMAUX :
- animaux interdits
- Type de logement :
- Studio
- RÉSIDENCE :
- N° de l'appartement ou de la chambre 101
- Type d'hébergeur :
- Professionnel
Descriptif détaillé
- SÉJOUR :
- 1 canapé(s) clic-clac 2 pers
- CABINE :
- 2 lits superposés
- SALLE(S) DE BAINS :
- salle(s) de bains avec baignoire
- SANITAIRES :
- WC séparé(s)
- DISTANCE ARRÊTS NAVETTES / OFFICE DE TOURISME / CENTRE AQUASPORTIF ET BOWLING :
- 0.10 m environ du centre station (Office de Tourisme)
Équipements
- ÉQUIPEMENTS CUISINE :
- grille-pain
- cocotte-minute
- service à raclette
- ÉQUIPEMENTS :
- casier à skis
- BÉBÉ / ENFANT :
- lit bébé avec supplément
- chaise bébé avec supplément
- baignoire bébé en supplément
Services
- ASSURANCE ANNULATION :
- Pour plus de sérénité, nous vous conseillons de souscrire à notre assurance annulation proposée au moment de votre réservation.
- SERVICES EN SUPPLÉMENT :
- location draps
- location linge de toilette
- ménage de fin de séjour
- lits faits à l'arrivée
Localisation
Destination
199 Avenue des JO
73620
LES SAISIES
Coordonnées GPS
Latitude : 45.757957
Longitude : 6.537659
Tarifs & Disponibilités
Avis
Note :
(2 avis)
3,5
/ 5
Mars 2019
Colette
Plus de 55 ans
En famille
Note :
4
/ 5
Aménagement intérieur (décoration, mobilier...)
Equipements (vaisselle et ustensiles de cuisine, électroménager...)
Confort de la literie
Entretien/ propreté
Situation géographique
Rapport qualité-prix
Avis écrit le 29/03/2019
Février 2019
regis
Plus de 55 ans
En couple
Note :
3
/ 5
Aménagement intérieur (décoration, mobilier...)
Equipements (vaisselle et ustensiles de cuisine, électroménager...)
Confort de la literie
Entretien/ propreté
Situation géographique
Rapport qualité-prix
Avis écrit le 15/02/2019
Avis par type de profil





























