PERLE DES ALPES BAT H BIS104-H13H - Appt 3 pièces cabine (17789)
Présentation
Appartement avec 2 chambres et un coin cabine doté d'un balcon sud/est dans la résidence Perles des Alpes situé à Bisanne 1500 à proximité des pistes et rassemblement ESF de Bisanne. Place de parking couverte et piscine intérieure chauffée.
?BONS PLANS AVEC LES SAISIES RÉSERVATION?AJOUTEZ AU PANIER VOTRE HÉBERGEMENT ET PROFITEZ DE REMISES DE -10 à 30% ! |
|
| ❄️HIVER : | Forfaits de ski, location de matériel, cours de ski, centre aquatique/spa, sorties en raquettes |
| ☀️ÉTÉ : | Pass loisirs, forfaits VTT, forfaits piéton, randonnées guidées |
Belle résidence de standing, avec piscine intérieure chauffée (ouverte en pleine saison d'hiver et d'été, située dans le bâtiment H), située à 6.5 Km du centre des Saisies, commerces sur front de neige: supérette, location de skis, restaurants, caisse des remontées mécaniques et télécabine pour accès au domaine skiable des Saisies. Navette gratuite pour rejoindre le centre de la station en hiver.
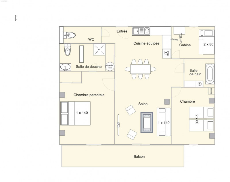
Appartement 3 pièces cabine, situé au 1 er étage avec ascenseur (entrée garage, 2 étages à monter), orienté sud-est avec balcon + place de parking couverte (H 2.20, L 5.15, l 2.55) au niveau -1 N°60.
L'appartement se compose d'un séjour avec un canapé convertible 140, d'une suite parentale avec un lit 140 et une salle d'eau avec WC attenante, d'une chambre avec deux lits 80 côte à côte, d'une cabine avec deux lits superposés 80 (NB : le lit supérieur d'un lit superposé est interdit aux - 6 ans), d' une salle de bain et WC séparé.
La cuisine est ouverte sur le séjour.
Ménage de fin séjour inclus. Linge de lit et de toilette inclus.
NB : Accès piscine : 28/06/2025 au 3/09/2025 et du 21/12/2026 au 11/04/2026
Appartement 3 pièces cabine, situé au 1 er étage avec ascenseur (entrée garage, 2 étages à monter), orienté sud-est avec balcon + place de parking couverte (H 2.20, L 5.15, l 2.55) au niveau -1 N°60.
L'appartement se compose d'un séjour avec un canapé convertible 140, d'une suite parentale avec un lit 140 et une salle d'eau avec WC attenante, d'une chambre avec deux lits 80 côte à côte, d'une cabine avec deux lits superposés 80 (NB : le lit supérieur d'un lit superposé est interdit aux - 6 ans), d' une salle de bain et WC séparé.
La cuisine est ouverte sur le séjour.
Ménage de fin séjour inclus. Linge de lit et de toilette inclus.
NB : Accès piscine : 28/06/2025 au 3/09/2025 et du 21/12/2026 au 11/04/2026
En Résumé
- Quartiers Les Saisies :
- Bisanne 1500
- ÉTAGE PAR RAPPORT AU SOL :
- 1er étage
- EXTÉRIEUR :
- balcon
- SUPERFICIE :
- 69 m²
- Capacité maximale :
- 8 personnes
- TYPE DE LOGEMENT :
- trois pièces
- ANIMAUX :
- animaux interdits
- VUE :
- montagne
- Type d'hébergeur :
- Professionnel
Équipements
- ÉQUIPEMENTS CUISINE :
- four
- ÉQUIPEMENTS :
- casier à skis
- aspirateur
- STATIONNEMENT :
- parking couvert inclus
- parking couvert en supplément
- parking privé extérieur
- parking public extérieur
Services
- ASSURANCE ANNULATION :
- Pour plus de sérénité, nous vous conseillons de souscrire à notre assurance annulation proposée au moment de votre réservation.
Destination
791 route des rosières
Appartement 13 - 1er étage - Bâtiment H
73270
VILLARD-SUR-DORON
Coordonnées GPS
Latitude : 45.736144
Longitude : 6.498392





























