PERLE DES ALPES BÂT C BIS104-C11 - Appt 3 pièces (17878)
Présentation
Appartement avec 2 chambres et un coin cabine et doté d'un balcon exposition sud/est dans la résidence Perles des Alpes situé à Bisanne 1500 à proximité des pistes et rassemblement ESF de Bisanne. Place de parking couverte et piscine intérieure chauffée.
BONS PLANS AVEC LES SAISIES RÉSERVATIONAJOUTEZ AU PANIER VOTRE HÉBERGEMENT ET PROFITEZ DE REMISES DE -10 à 30% ! |
|
| ❄️HIVER : | Forfaits de ski, location de matériel, cours de ski, centre aquatique/spa, sorties en raquettes |
| ☀️ÉTÉ : | Pass loisirs, forfaits VTT, forfaits piéton, randonnées guidées |
Belle résidence de standing, à proximité de toutes commodités, à 6.5 Km du centre des saisies, avec piscine intérieure chauffée (ouverte en pleine saison d'hiver et d'été, située dans le bâtiment H).
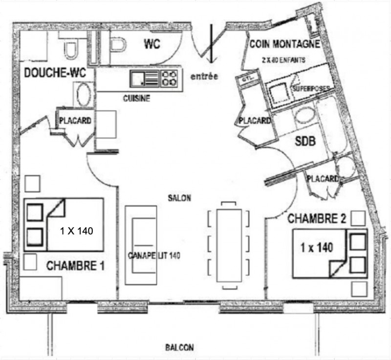
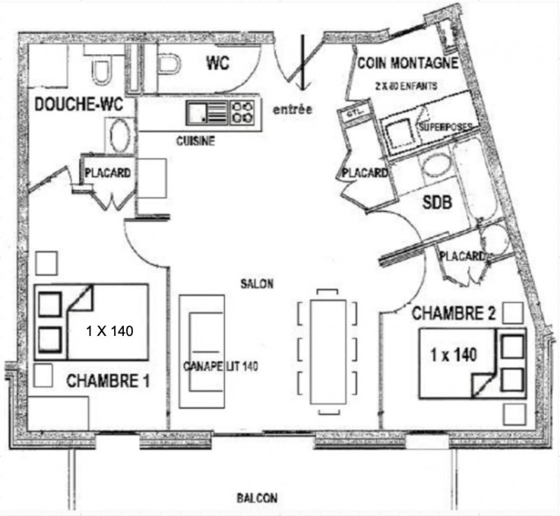
Appartement 3 pièces cabine, situé au 2 ème étage avec ascenseur (accès plain pied depuis entrée résidence), orienté sud/est avec balcon + place de parking couverte dans bâtiment C (H.2.26m; L.5.60m; L.2.50m).
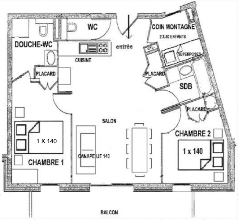
L'appartement se compose d'un séjour avec un canapé convertible 140, d'une suite parentale avec un lit 140 et une salle d'eau avec WC attenante, d'une chambre avec un lit 140, d'une cabine avec deux lits superposés 90 (NB: le lit supérieur d'un lit superposé est interdit aux - de 6 ans), d'une salle de bain et d'un wc séparé.
La cuisine est ouverte sur le séjour.
NB : Accès piscine : 28/06/2025 au 3/09/2025 et du 21/12/2026 au 11/04/2026
Catégorie ménage: H
Appartement 3 pièces cabine, situé au 2 ème étage avec ascenseur (accès plain pied depuis entrée résidence), orienté sud/est avec balcon + place de parking couverte dans bâtiment C (H.2.26m; L.5.60m; L.2.50m).
L'appartement se compose d'un séjour avec un canapé convertible 140, d'une suite parentale avec un lit 140 et une salle d'eau avec WC attenante, d'une chambre avec un lit 140, d'une cabine avec deux lits superposés 90 (NB: le lit supérieur d'un lit superposé est interdit aux - de 6 ans), d'une salle de bain et d'un wc séparé.
La cuisine est ouverte sur le séjour.
NB : Accès piscine : 28/06/2025 au 3/09/2025 et du 21/12/2026 au 11/04/2026
Catégorie ménage: H
En Résumé
- Quartiers Les Saisies :
- Bisanne 1500
- ÉTAGE PAR RAPPORT AU SOL :
- 2ème étage
- EXTÉRIEUR :
- balcon
- SUPERFICIE :
- 65 m²
- Capacité maximale :
- 8 personnes
- TYPE DE LOGEMENT :
- trois pièces
- ANIMAUX :
- animaux interdits
- VUE :
- montagne
- Type d'hébergeur :
- Professionnel
Descriptif détaillé
- SÉJOUR :
- 1 canapé lit convertible 2 personnes
- CABINE :
- 2 lits superposés
- CHAMBRE 1 :
- 1 lit(s) double(s) 140 cm
- avec douche
- CHAMBRE 2 :
- 1 lit(s) double(s) 140 cm
- SALLE(S) DE BAINS :
- 1 salle(s) de bains avec baignoire
- SANITAIRES :
- 1 WC séparé(s)
Équipements
- ÉQUIPEMENTS CUISINE :
- lave-vaisselle
- réfrigérateur
- ÉQUIPEMENTS :
- casier à skis
- aspirateur
- STATIONNEMENT :
- parking couvert inclus
- parking couvert en supplément
- parking privé extérieur
- parking public extérieur
- BIEN-ÊTRE :
- piscine intérieure chauffée
Services
- ASSURANCE ANNULATION :
- Pour plus de sérénité, nous vous conseillons de souscrire à notre assurance annulation proposée au moment de votre réservation.
Destination
Route des Rosières
Appartement 11- 2 ème étage - Bâtiment C
73270
VILLARD-SUR-DORON
Coordonnées GPS
Latitude : 45.736762
Longitude : 6.499491































