MONT BLANC BAT B SAI405-B201 - Appt Studio (17501)
Présentation
Studio avec coin cabine doté d'un balcon exposé sud dans la résidence Mont Blanc B en centre station à proximité immédiate des pistes, commerces et rassemblement ESF/ESI.
?BONS PLANS AVEC LES SAISIES RÉSERVATION?AJOUTEZ AU PANIER VOTRE HÉBERGEMENT ET PROFITEZ DE REMISES DE -10 à 30% ! |
|
| ❄️HIVER : | Forfaits de ski, location de matériel, cours de ski, centre aquatique/spa, sorties en raquettes |
| ☀️ÉTÉ : | Pass loisirs, forfaits VTT, forfaits piéton, randonnées guidées |
Résidence située proche du centre station, à proximité de toutes commodités.
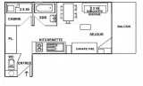
Appartement studio cabine situé au rez-de-chaussée surélevé de la résidence sans ascenseur (deux étages à descendre), orienté sud avec balcon.
L'appartement se compose d'un séjour avec une banquette gigogne 2x80 et une kitchenette équipée ouverte, d'une cabine avec lits superposés 2x80 (NB: le lit supérieur d'un lit superposé est interdit aux - de 6 ans), d'une salle de bain et WC séparé.
Cet appartement est classé meublé de tourisme 2 étoiles.
Catégorie ménage: B
Animaux de compagnie acceptés avec un supplément de 39,00 €
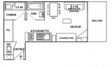
Appartement studio cabine situé au rez-de-chaussée surélevé de la résidence sans ascenseur (deux étages à descendre), orienté sud avec balcon.
L'appartement se compose d'un séjour avec une banquette gigogne 2x80 et une kitchenette équipée ouverte, d'une cabine avec lits superposés 2x80 (NB: le lit supérieur d'un lit superposé est interdit aux - de 6 ans), d'une salle de bain et WC séparé.
Cet appartement est classé meublé de tourisme 2 étoiles.
Catégorie ménage: B
Animaux de compagnie acceptés avec un supplément de 39,00 €
En Résumé
- EXPOSITION :
- sud
- Quartiers Les Saisies :
- Centre station
- ÉTAGE PAR RAPPORT AU SOL :
- rez de chaussée
- EXTÉRIEUR :
- balcon
- SUPERFICIE :
- 29 m²
- Capacité maximale :
- 4 personnes
- TYPE DE LOGEMENT :
- une pièce
- ANIMAUX :
- animaux acceptés
- animaux admis avec supplément
- petits animaux acceptés
- Animaux acceptés sous réserve d'accord du propriétaire
- Type d'hébergeur :
- Professionnel
Descriptif détaillé
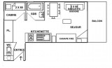
- SÉJOUR :
- 1 banquette gigogne 2 pers
- CABINE :
- 2 lits superposés
- SALLE(S) DE BAINS :
- 1 salle(s) de bains avec baignoire
- SANITAIRES :
- 1 WC séparé(s)
Équipements
- ÉQUIPEMENTS CUISINE :
- réfrigérateur
- ÉQUIPEMENTS :
- casier à skis
- aspirateur
- STATIONNEMENT :
- parking couvert en supplément
Services
- ASSURANCE ANNULATION :
- Pour plus de sérénité, nous vous conseillons de souscrire à notre assurance annulation proposée au moment de votre réservation.
Destination
177 rue des moliettes
Appartement 201 - RDC surélevé - Bâtiment B
73620
LES SAISIES
Coordonnées GPS
Latitude : 45.756561
Longitude : 6.538618
Tarifs & Disponibilités
Avis
Note :
(1 avis)
4
/ 5
Août 2024
EMILIE
De 35 à 44 ans
En famille
Note :
4
/ 5
Aménagement intérieur (décoration, mobilier...)
Equipements (vaisselle et ustensiles de cuisine, électroménager...)
Confort de la literie
Entretien/ propreté
Situation géographique
Rapport qualité-prix
Avis écrit le 12/08/2024
Avis par type de profil





























