MELEZES BAT 1 SAI609-005 - Appt Studio (17503)
- 1
Présentation
Studio avec alcôve et coin cabiné doté d'un balcon exposé sud dans la résidence Mélèzes 1 situé dans le quartier de la Traie aux Saisies, à proximité des pistes (télésièges des Carrets), commerces et rassemblement ESF.
?BONS PLANS AVEC LES SAISIES RÉSERVATION?AJOUTEZ AU PANIER VOTRE HÉBERGEMENT ET PROFITEZ DE REMISES DE -10 à 30% ! |
|
| ❄️HIVER : | Forfaits de ski, location de matériel, cours de ski, centre aquatique/spa, sorties en raquettes |
| ☀️ÉTÉ : | Pass loisirs, forfaits VTT, forfaits piéton, randonnées guidées |
Résidence dans le bas station proche des télésièges de la légette et des carrets.
Le résidence est exposée sud face au massif du Beaufortain.
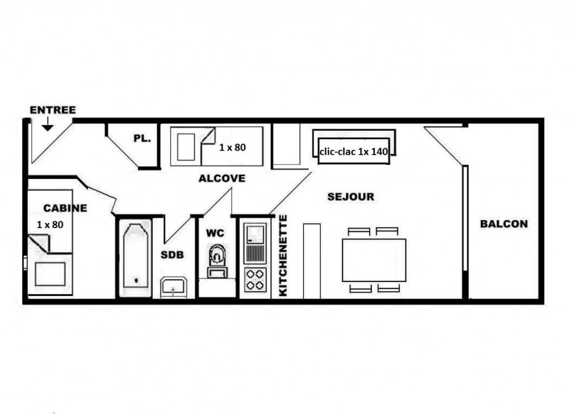
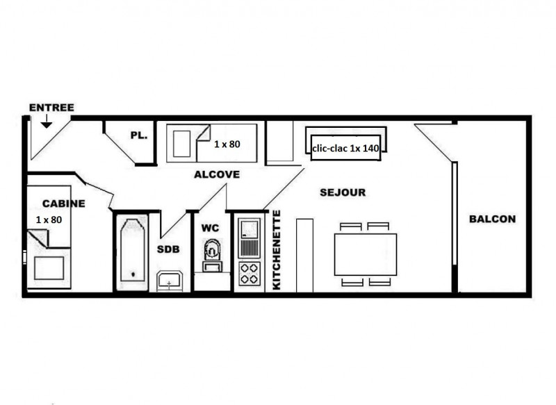
Appartement studio cabine alcôve situé au 1er étage de la résidence sans ascenseur ( 1 étage à monter), orienté sud avec balcon.
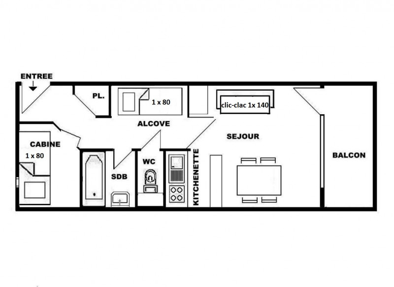
L’appartement comprend une kitchenette équipée, un séjour avec un canapé en 140, une cabine avec un lit 1 personne, une alcôve avec un lit 1 personne, une salle de bains et un wc séparé.
Location classée meublé de tourisme 1*
Catégorie ménage: B
Le résidence est exposée sud face au massif du Beaufortain.
Appartement studio cabine alcôve situé au 1er étage de la résidence sans ascenseur ( 1 étage à monter), orienté sud avec balcon.
L’appartement comprend une kitchenette équipée, un séjour avec un canapé en 140, une cabine avec un lit 1 personne, une alcôve avec un lit 1 personne, une salle de bains et un wc séparé.
Location classée meublé de tourisme 1*
Catégorie ménage: B
En Résumé
- EXPOSITION :
- sud
- Quartiers Les Saisies :
- Quartier de la porte des saisies
- ÉTAGE PAR RAPPORT AU SOL :
- 1er étage
- EXTÉRIEUR :
- balcon
- SUPERFICIE :
- 24 m²
- Capacité maximale :
- 4 personnes
- TYPE DE LOGEMENT :
- une pièce
- ANIMAUX :
- animaux interdits
- Type d'hébergeur :
- Professionnel
Équipements
- ÉQUIPEMENTS CUISINE :
- appareil à fondue
- ÉQUIPEMENTS :
- casier à skis
- aspirateur
- STATIONNEMENT :
- parking couvert en supplément
Services
- ASSURANCE ANNULATION :
- Pour plus de sérénité, nous vous conseillons de souscrire à notre assurance annulation proposée au moment de votre réservation.
Localisation
Destination
415 Route de la Traie
Appartement 5 - 1er étage - bâtiment 1 Esc B
73620
LES SAISIES
Coordonnées GPS
Latitude : 45.754074
Longitude : 6.543835
Tarifs & Disponibilités
Avis
Note :
(1 avis)
5
/ 5
Mars 2023
M PIERRE
De 45 à 55 ans
En famille
Note :
5
/ 5
Aménagement intérieur (décoration, mobilier...)
Equipements (vaisselle et ustensiles de cuisine, électroménager...)
Confort de la literie
Entretien/ propreté
Situation géographique
Rapport qualité-prix
Avis écrit le 06/03/2023
Avis par type de profil





























