LES ALPAGES SAI601-007 - Appt Studio (17554)
Présentation
Appartement 2 pièces avec une alcôve et doté d'un balcon orienté sud-est dans la résidence Les Alpages, située dans le secteur des Carrets, à proximité des pistes de ski et rassemblement ESF.
BONS PLANS AVEC LES SAISIES RÉSERVATIONAJOUTEZ AU PANIER VOTRE HÉBERGEMENT ET PROFITEZ DE REMISES DE -10 à 30% ! |
|
| ❄️HIVER : | Forfaits de ski, location de matériel, cours de ski, centre aquatique/spa, sorties en raquettes |
| ☀️ÉTÉ : | Pass loisirs, forfaits VTT, forfaits piéton, randonnées guidées |
Petite résidence située dans le secteur des carrets, à 400m d'un départ à ski, supérette et magasin de sport à l'entrée de la route de la traie
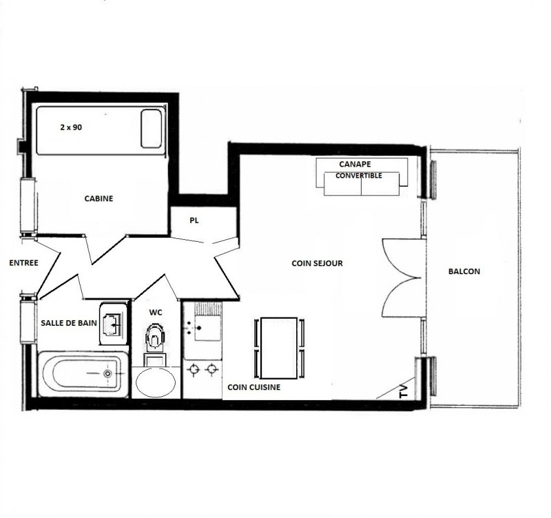
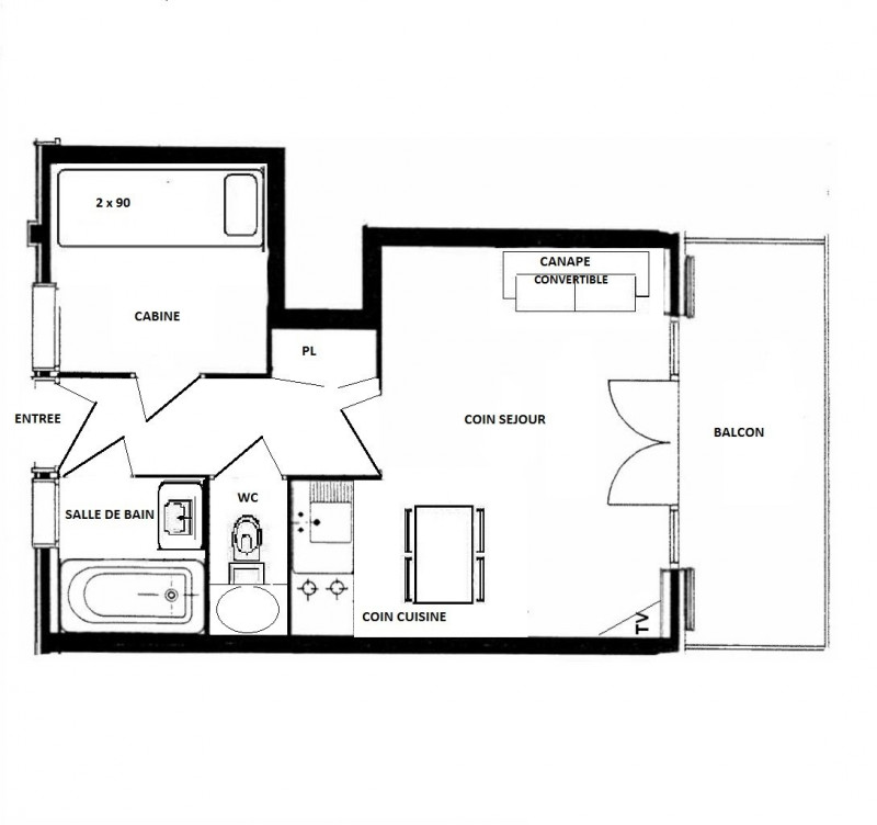
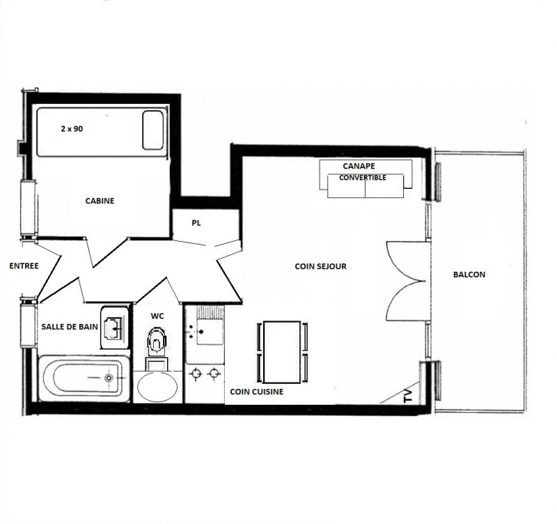
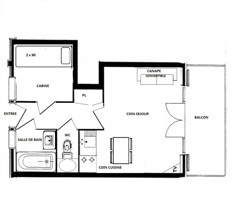
Studio cabine situé au 1er étage de la résidence sans ascenseur (deux étages à monter), orienté sud avec balcon.
Le studio se compose d'un séjour avec un canapé convertible 140, une kitchenette équipée, d'une cabine avec 2 lits superposés 2x90 (NB: le lit supérieur d'un lit superposé est interdit aux - de 6 ans), d'une salle de bain et d'un WC séparé.
Catégorie ménage: B
Studio cabine situé au 1er étage de la résidence sans ascenseur (deux étages à monter), orienté sud avec balcon.
Le studio se compose d'un séjour avec un canapé convertible 140, une kitchenette équipée, d'une cabine avec 2 lits superposés 2x90 (NB: le lit supérieur d'un lit superposé est interdit aux - de 6 ans), d'une salle de bain et d'un WC séparé.
Catégorie ménage: B
En Résumé
- EXPOSITION :
- sud
- Quartiers Les Saisies :
- Quartier de la traie
- ÉTAGE PAR RAPPORT AU SOL :
- 1er étage
- EXTÉRIEUR :
- balcon
- SUPERFICIE :
- 22 m²
- Capacité maximale :
- 4 personnes
- TYPE DE LOGEMENT :
- une pièce
- ANIMAUX :
- animaux interdits
- Type d'hébergeur :
- Professionnel
Équipements
- ÉQUIPEMENTS CUISINE :
- four
- ÉQUIPEMENTS :
- casier à skis
- aspirateur
- STATIONNEMENT :
- parking couvert en supplément
Services
- ASSURANCE ANNULATION :
- Pour plus de sérénité, nous vous conseillons de souscrire à notre assurance annulation proposée au moment de votre réservation.
Localisation
Destination
171 Route de la Traie
Appartement 7 - 1er étage
73620
LES SAISIES
Coordonnées GPS
Latitude : 45.754293
Longitude : 6.543372
Tarifs & Disponibilités
Avis
Note :
(1 avis)
3
/ 5
Mars 2023
MICHAEL
Note :
3
/ 5
Aménagement intérieur (décoration, mobilier...)
Equipements (vaisselle et ustensiles de cuisine, électroménager...)
Confort de la literie
Entretien/ propreté
Situation géographique
Rapport qualité-prix
Avis écrit le 06/03/2023
Avis par type de profil





























