ISABELLA C SAI304-C07 - Appt Studio (17441)
Présentation
Studio avec cabine et balcon dans la résidence Isabelle C en centre station proche de toutes commodités : pistes, rassemblement ESF/ESI et commerces.
BONS PLANS AVEC LES SAISIES RÉSERVATIONAJOUTEZ AU PANIER VOTRE HÉBERGEMENT ET PROFITEZ DE REMISES DE -10 à 30% ! |
|
| ❄️HIVER : | Forfaits de ski, location de matériel, cours de ski, centre aquatique/spa, sorties en raquettes |
| ☀️ÉTÉ : | Pass loisirs, forfaits VTT, forfaits piéton, randonnées guidées |
Résidence située en plein centre station, sur l'avenue principale, proche de toutes commodités et commerces.
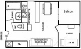
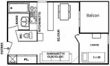
Appartement studio cabine situé au 1er étage de la résidence sans ascenseur (un demi étage à monter + environ 10 marches à l'extérieur pour accéder à la résidence), orienté est avec balcon.
L’appartement se compose d'un séjour avec un canapé clic clac 140 et d'une kitchenette équipée ouverte, d'une cabine avec lits superposés 2x80 (NB: le lit supérieur d'un lit superposé est interdit aux - de 6 ans), d'une salle de bains et WC séparé.
Catégorie ménage: B
Appartement studio cabine situé au 1er étage de la résidence sans ascenseur (un demi étage à monter + environ 10 marches à l'extérieur pour accéder à la résidence), orienté est avec balcon.
L’appartement se compose d'un séjour avec un canapé clic clac 140 et d'une kitchenette équipée ouverte, d'une cabine avec lits superposés 2x80 (NB: le lit supérieur d'un lit superposé est interdit aux - de 6 ans), d'une salle de bains et WC séparé.
Catégorie ménage: B
En Résumé
- EXPOSITION :
- est
- Quartiers Les Saisies :
- Centre station
- ÉTAGE PAR RAPPORT AU SOL :
- 1er étage
- EXTÉRIEUR :
- balcon
- SUPERFICIE :
- 25 m²
- Capacité maximale :
- 4 personnes
- TYPE DE LOGEMENT :
- une pièce
- ANIMAUX :
- animaux interdits
- Type d'hébergeur :
- Professionnel
Descriptif détaillé
- SÉJOUR :
- 1 canapé lit convertible 2 personnes
- CABINE :
- 2 lits superposés
- LITERIE :
- 4 couverture(s) simple(s)
- 1 couette(s) double(s)
- 4 oreiller(s)
- SALLE(S) DE BAINS :
- 1 salle(s) de bains avec baignoire
- SANITAIRES :
- 1 WC séparé(s)
Équipements
- ÉQUIPEMENTS CUISINE :
- réfrigérateur
- ÉQUIPEMENTS :
- casier à skis
- aspirateur
- STATIONNEMENT :
- parking couvert en supplément
Services
- ASSURANCE ANNULATION :
- Pour plus de sérénité, nous vous conseillons de souscrire à notre assurance annulation proposée au moment de votre réservation.
Localisation
Destination
311 Av des JO
Appartement 7 - 1er étage - Bâtiment C
73620
LES SAISIES
Coordonnées GPS
Latitude : 45.757611
Longitude : 6.5389
Tarifs & Disponibilités
Avis
Note :
(2 avis)
3,5
/ 5
Février 2025
Martine
Plus de 55 ans
En famille
Note :
4
/ 5
Aménagement intérieur (décoration, mobilier...)
Equipements (vaisselle et ustensiles de cuisine, électroménager...)
Confort de la literie
Entretien/ propreté
Situation géographique
Rapport qualité-prix
Avis écrit le 03/02/2025
Février 2024
BASTIEN
De 35 à 44 ans
En famille
Note :
3
/ 5
Aménagement intérieur (décoration, mobilier...)
Equipements (vaisselle et ustensiles de cuisine, électroménager...)
Confort de la literie
Entretien/ propreté
Situation géographique
Rapport qualité-prix
Avis écrit le 19/02/2024
Avis par type de profil





























