FERMES DU BEAUFORTAIN BÂTIMENT A BIS103-A06 - Appt 5 pièces (17570)
Présentation
Appartement avec 4 chambres doté d'un balcon orienté sud/est dans la résidence Les Fermes du Beaufortain situé à Bisanne 1500 skis avec skis aux pieds et rassemblement ESF de Bisanne et à 6.5km des Saisies. Place de parking couverte incluse.
BONS PLANS AVEC LES SAISIES RÉSERVATIONAJOUTEZ AU PANIER VOTRE HÉBERGEMENT ET PROFITEZ DE REMISES DE -10 à 30% ! |
|
| ❄️HIVER : | Forfaits de ski, location de matériel, cours de ski, centre aquatique/spa, sorties en raquettes |
| ☀️ÉTÉ : | Pass loisirs, forfaits VTT, forfaits piéton, randonnées guidées |
Résidence confortable, skis aux pieds, à 6.5 km du centre des Saisies.
Appartement 5 pièces, situé au 1er étage sans ascenseur (accès plain pied depuis entrée résidence), orienté sud/est avec balcon + place de parking couverte dans bâtiment à l'entrée de la résidence (H.2.05m; L.5.30m; L.2.40m).
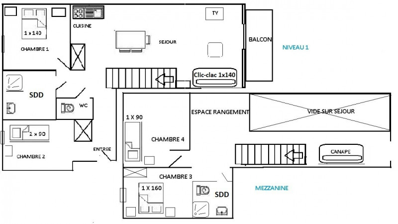
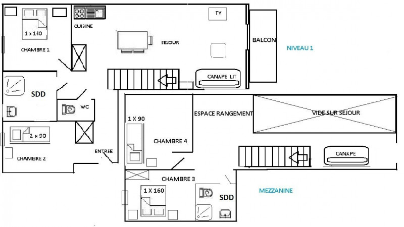
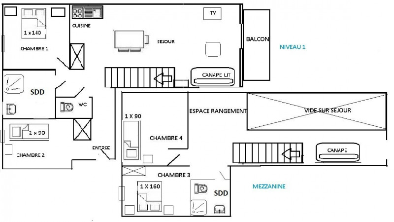
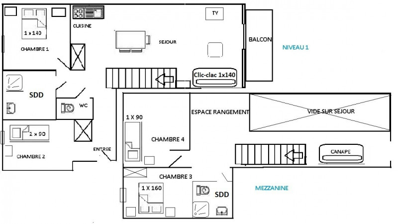
L'appartement se compose d'un séjour avec un canapé clic clac 140, d'une chambre avec un lit 140, d'une chambre avec deux lits superposés 90 (NB: le lit supérieur d'un lit superposé est interdit aux - de 6 ans), d'une salle d'eau et d'un wc séparé au niveau zéro, à l'étage d'une chambre avec un lit 160 ,d'une chambre en sous pente avec un lit 90, d' une salle d'eau avec WC.
La cuisine est ouverte sur le séjour.
Catégorie ménage: J
Appartement 5 pièces, situé au 1er étage sans ascenseur (accès plain pied depuis entrée résidence), orienté sud/est avec balcon + place de parking couverte dans bâtiment à l'entrée de la résidence (H.2.05m; L.5.30m; L.2.40m).
L'appartement se compose d'un séjour avec un canapé clic clac 140, d'une chambre avec un lit 140, d'une chambre avec deux lits superposés 90 (NB: le lit supérieur d'un lit superposé est interdit aux - de 6 ans), d'une salle d'eau et d'un wc séparé au niveau zéro, à l'étage d'une chambre avec un lit 160 ,d'une chambre en sous pente avec un lit 90, d' une salle d'eau avec WC.
La cuisine est ouverte sur le séjour.
Catégorie ménage: J
En Résumé
- Quartiers Les Saisies :
- Bisanne 1500
- ÉTAGE PAR RAPPORT AU SOL :
- 1er étage
- EXTÉRIEUR :
- balcon
- SUPERFICIE :
- 62 m²
- Capacité maximale :
- 9 personnes
- TYPE DE LOGEMENT :
- cinq pièces mezzanine
- appartement
- ANIMAUX :
- animaux interdits
- VUE :
- montagne
- Type d'hébergeur :
- Professionnel
Descriptif détaillé
- SÉJOUR :
- 1 canapé lit convertible 2 personnes
- CHAMBRE 1 :
- 2 lits superposés
- lit(s) double(s) 140 cm
- CHAMBRE 2 :
- 1 lit(s) double(s) 160 cm
- CHAMBRE 3 :
- 1 lit(s) double(s) 160 cm
- SOUS-PENTE :
- 1 lit(s) simple(s) 90 cm
- SALLE(S) DE BAINS :
- 2 salle(s) de bains avec douche
- SANITAIRES :
- 1 WC séparé(s)
- 1 WC dans salle de bains
Équipements
- ÉQUIPEMENTS CUISINE :
- four
- ÉQUIPEMENTS :
- casier à skis
- aspirateur
- STATIONNEMENT :
- garage inclus (box)
- parking couvert inclus
- parking couvert en supplément
- parking privé extérieur
- parking public extérieur
Services
- ASSURANCE ANNULATION :
- Pour plus de sérénité, nous vous conseillons de souscrire à notre assurance annulation proposée au moment de votre réservation.
Localisation
Destination
1001 route des Rosières Les Rosières
Appartement 6 - 1er étage - bâtiment A
73270
VILLARD-SUR-DORON
Coordonnées GPS
Latitude : 45.738016
Longitude : 6.501659
Tarifs & Disponibilités
Avis
Note :
(1 avis)
4
/ 5
Février 2025
Eric
Plus de 55 ans
En famille
Note :
4
/ 5
Aménagement intérieur (décoration, mobilier...)
Equipements (vaisselle et ustensiles de cuisine, électroménager...)
Confort de la literie
Entretien/ propreté
Situation géographique
Rapport qualité-prix
Avis écrit le 10/02/2025
Avis par type de profil







































