ECRIN SAI404-021 - Appt Studio / cab / mezz (17566)
Présentation
Studio avec 2 coins montagne borgnes et un coin mezzanine doté d'un balcon orienté sud dans la résidence Ecrin en centre station à proximité des pistes de ski, rassemblement ESF/ESI et commerces.
BONS PLANS AVEC LES SAISIES RÉSERVATIONAJOUTEZ AU PANIER VOTRE HÉBERGEMENT ET PROFITEZ DE REMISES DE -10 à 30% ! |
|
| ❄️HIVER : | Forfaits de ski, location de matériel, cours de ski, centre aquatique/spa, sorties en raquettes |
| ☀️ÉTÉ : | Pass loisirs, forfaits VTT, forfaits piéton, randonnées guidées |
Résidence centre station, départ à skis très proche
La résidence est exposée sud face au Mont Bisanne.
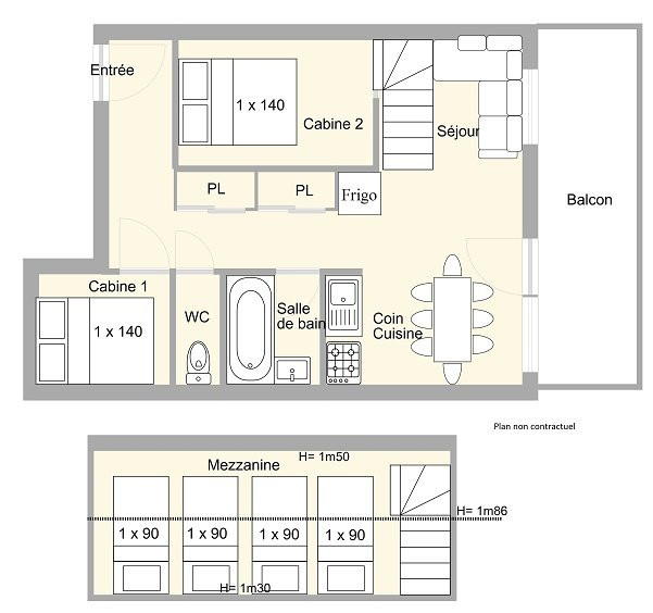
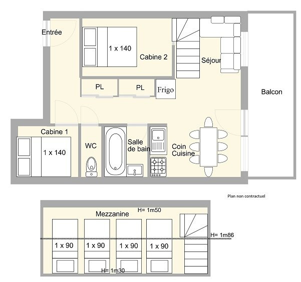
Appartement studio 2 coins montagne borgnes et mezzanine situé au deuxième étage de la résidence sans ascenseur ( 2 étages à monter), orienté sud avec balcon.
L’appartement comprend une kitchenette équipée, un séjour, 2 coins montagne borgnes avec chacun 1 lit en 140, une salle de bains avec wc séparé, à l'étage une mezzanine avec 4 lits en 80 côte à côte.
Les avantages de cet appartement : appartement sur 2 niveaux, les animaux de compagnie sont acceptés
Informations pratiques : près de l’école de ski ESI
L'environnement : le secteur vous permet de partir skier sans trop marcher et de faire vos achats à pied dans le centre. En été, vous serez sur place pour les animations au cœur de la station
Catégorie ménage: G
Animaux de compagnie acceptés avec un supplément de 39,00 €
La résidence est exposée sud face au Mont Bisanne.
Appartement studio 2 coins montagne borgnes et mezzanine situé au deuxième étage de la résidence sans ascenseur ( 2 étages à monter), orienté sud avec balcon.
L’appartement comprend une kitchenette équipée, un séjour, 2 coins montagne borgnes avec chacun 1 lit en 140, une salle de bains avec wc séparé, à l'étage une mezzanine avec 4 lits en 80 côte à côte.
Les avantages de cet appartement : appartement sur 2 niveaux, les animaux de compagnie sont acceptés
Informations pratiques : près de l’école de ski ESI
L'environnement : le secteur vous permet de partir skier sans trop marcher et de faire vos achats à pied dans le centre. En été, vous serez sur place pour les animations au cœur de la station
Catégorie ménage: G
Animaux de compagnie acceptés avec un supplément de 39,00 €
En Résumé
- EXPOSITION :
- sud
- Quartiers Les Saisies :
- Centre station
- ÉTAGE PAR RAPPORT AU SOL :
- 2ème étage
- EXTÉRIEUR :
- balcon
- SUPERFICIE :
- 38 m²
- Capacité maximale :
- 8 personnes
- TYPE DE LOGEMENT :
- une pièce
- ANIMAUX :
- animaux acceptés
- animaux admis avec supplément
- petits animaux acceptés
- Animaux acceptés sous réserve d'accord du propriétaire
- VUE :
- montagne
- Type d'hébergeur :
- Professionnel
Descriptif détaillé
- CABINE :
- 2 lit(s) double(s) 140 cm
- MEZZANINE :
- 4 lit(s) simple(s) 80 cm
- SALLE(S) DE BAINS :
- 1 salle(s) de bains avec baignoire
- SANITAIRES :
- 1 WC séparé(s)
Équipements
- ÉQUIPEMENTS CUISINE :
- four
- ÉQUIPEMENTS :
- casier à skis
- aspirateur
- STATIONNEMENT :
- parking couvert en supplément
Services
- ASSURANCE ANNULATION :
- Pour plus de sérénité, nous vous conseillons de souscrire à notre assurance annulation proposée au moment de votre réservation.
Destination
41 Chemin du Cristal
Appartement 21 - 2ème étage
73620
LES SAISIES
Coordonnées GPS
Latitude : 45.757022
Longitude : 6.537766































