CHARDOCHE SAI302-B01 - Appt 2 pièces (18873)
- 1
Présentation
Appartement 2 pièces doté d'un balcon exposé sud situé dans la résidenceChardoche dans le quartier des Haut-Lieux aux Saisies à proximité du centre station et des commodités : pistes de ski, rassemblement ESF/ESI et commerces.
BONS PLANS AVEC LES SAISIES RÉSERVATIONAJOUTEZ AU PANIER VOTRE HÉBERGEMENT ET PROFITEZ DE REMISES DE -10 à 30% ! |
|
| ❄️HIVER : | Forfaits de ski, location de matériel, cours de ski, centre aquatique/spa, sorties en raquettes |
| ☀️ÉTÉ : | Pass loisirs, forfaits VTT, forfaits piéton, randonnées guidées |
Petite résidence située proche du centre station et d'une piste bleue pour rejoindre le parking des Carrets et rassemblements ESF.
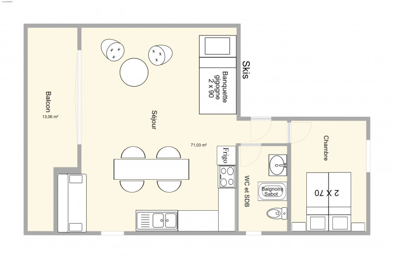
Appartement 2 pièces situé au 2ème étage de la résidence sans ascenseur.
L'appartement se compose d'un séjour avec une banquette gigogne 2x80 et une kitchenette équipée ouverte, d'une chambre avec deux lits 70 côte à côte, d'une salle de bain (baignoire sabot) et WC non séparés.
Remarque: Il n'y a pas de télévision dans ce logement. Appartement non accessible aux handicapés
Le casier à skis est sur le palier non fermé.
Cet appartement est classé meublé de tourisme 1 étoile.
Catégorie ménage: D
Appartement 2 pièces situé au 2ème étage de la résidence sans ascenseur.
L'appartement se compose d'un séjour avec une banquette gigogne 2x80 et une kitchenette équipée ouverte, d'une chambre avec deux lits 70 côte à côte, d'une salle de bain (baignoire sabot) et WC non séparés.
Remarque: Il n'y a pas de télévision dans ce logement. Appartement non accessible aux handicapés
Le casier à skis est sur le palier non fermé.
Cet appartement est classé meublé de tourisme 1 étoile.
Catégorie ménage: D
En Résumé
- EXPOSITION :
- sud
- Quartiers Les Saisies :
- Centre station
- ÉTAGE PAR RAPPORT AU SOL :
- 2ème étage
- EXTÉRIEUR :
- balcon
- SUPERFICIE :
- 35 m²
- Capacité maximale :
- 4 personnes
- TYPE DE LOGEMENT :
- deux pièces
- ANIMAUX :
- animaux interdits
- Type d'hébergeur :
- Professionnel
Descriptif détaillé
- SÉJOUR :
- 1 banquette gigogne 2 pers
- CHAMBRE 1 :
- 2 lits simples jumelables
- SALLE(S) DE BAINS :
- 1 salle(s) de bains avec baignoire
- SANITAIRES :
- 1 WC dans salle de bains
Équipements
- ÉQUIPEMENTS CUISINE :
- appareil à fondue
- ÉQUIPEMENTS :
- aspirateur
- STATIONNEMENT :
- parking couvert en supplément
Services
- ASSURANCE ANNULATION :
- Pour plus de sérénité, nous vous conseillons de souscrire à notre assurance annulation proposée au moment de votre réservation.
Destination
415 rue du Mirantin
Appartement n°1 - Entrée B - 2ème étage
73620
LES SAISIES
Coordonnées GPS
Latitude : 45.756501
Longitude : 6.544404

























