CHARDOCHE SAI302-002 - Appt 2 pièces (17420)
Présentation
Appartement deux pièces avec alcôve situé dans la résidence Chardoche (quartier des Haut-Lieux) proche du centre station et d'une piste bleue rejoingnant secteur des Carrets (rassemblement ESF).
?BONS PLANS AVEC LES SAISIES RÉSERVATION?AJOUTEZ AU PANIER VOTRE HÉBERGEMENT ET PROFITEZ DE REMISES DE -10 à 30% ! |
|
| ❄️HIVER : | Forfaits de ski, location de matériel, cours de ski, centre aquatique/spa, sorties en raquettes |
| ☀️ÉTÉ : | Pass loisirs, forfaits VTT, forfaits piéton, randonnées guidées |
Petite résidence située proche du centre station et d'une piste bleue pour rejoindre le parking des Carrets.
Appartement 2 pièces alcôve situé au rez de jardin de la résidence sans ascenseur.
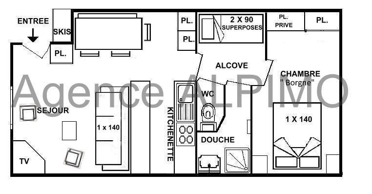
L'appartement se compose d'un séjour avec un canapé RAPIDO 140 et une kitchenette équipée ouverte, d'une chambre borgne avec un lit 140, d'une alcôve avec lits superposés 2x90 (NB : le lit supérieur d'un lit superposé est interdit aux - 6 ans), d'une salle d'eau et WC séparé.
Les avantages de cet appartement : vous serez proche du centre station tout en étant dans un environnement calme.
Informations pratiques : résidence située au bout d'une avenue, peu de passage en voiture.
Cet appartement est classé meublé de tourisme 2 étoiles.
Catégorie ménage: E
Appartement 2 pièces alcôve situé au rez de jardin de la résidence sans ascenseur.
L'appartement se compose d'un séjour avec un canapé RAPIDO 140 et une kitchenette équipée ouverte, d'une chambre borgne avec un lit 140, d'une alcôve avec lits superposés 2x90 (NB : le lit supérieur d'un lit superposé est interdit aux - 6 ans), d'une salle d'eau et WC séparé.
Les avantages de cet appartement : vous serez proche du centre station tout en étant dans un environnement calme.
Informations pratiques : résidence située au bout d'une avenue, peu de passage en voiture.
Cet appartement est classé meublé de tourisme 2 étoiles.
Catégorie ménage: E
En Résumé
- EXPOSITION :
- sud
- Quartiers Les Saisies :
- Centre station
- ÉTAGE PAR RAPPORT AU SOL :
- rez de chaussée
- SUPERFICIE :
- 36 m²
- Capacité maximale :
- 6 personnes
- TYPE DE LOGEMENT :
- deux pièces
- ANIMAUX :
- animaux interdits
- Type d'hébergeur :
- Professionnel
Descriptif détaillé
- SÉJOUR :
- 1 canapé lit convertible 2 personnes
- CABINE :
- 2 lits superposés
- CHAMBRE 1 :
- 1 lit(s) double(s) 140 cm
- SALLE(S) DE BAINS :
- 1 salle(s) de bains avec douche
- SANITAIRES :
- 1 WC séparé(s)
Équipements
- ÉQUIPEMENTS CUISINE :
- four
- ÉQUIPEMENTS :
- casier à skis
- aspirateur
- STATIONNEMENT :
- parking couvert en supplément
Services
- ASSURANCE ANNULATION :
- Pour plus de sérénité, nous vous conseillons de souscrire à notre assurance annulation proposée au moment de votre réservation.
Destination
411 rue du Mirantin
Appartement 2 - Rez de jardin
73620
LES SAISIES
Coordonnées GPS
Latitude : 45.756501
Longitude : 6.544404
Tarifs & Disponibilités
Avis
Note :
(2 avis)
4,5
/ 5
Février 2025
Pierre-Jean
De 45 à 55 ans
Entre ami(e)s
Note :
5
/ 5
Assiettes ébréchées, variateur chauffage sdb défectueux et local à skis inexistant
Aménagement intérieur (décoration, mobilier...)
Equipements (vaisselle et ustensiles de cuisine, électroménager...)
Confort de la literie
Entretien/ propreté
Situation géographique
Rapport qualité-prix
Avis écrit le 10/02/2025
Février 2024
Fabien
De 45 à 55 ans
En famille
Note :
4
/ 5
Aménagement intérieur (décoration, mobilier...)
Equipements (vaisselle et ustensiles de cuisine, électroménager...)
Confort de la literie
Entretien/ propreté
Situation géographique
Rapport qualité-prix
Avis écrit le 19/02/2024
Avis par type de profil





























