CHANTOISEAU SAI203-003 - Appt 2 pièces (17754)
- 1
Présentation
Appartement 2 pièces et un coin montagne doté d'un balcon exposé sud situé dans la résidence Chantoiseau dans le quartier des Haut-Lieux aux Saisies à proximité des pistes de ski et rassemblement ESF et des commerces.
BONS PLANS AVEC LES SAISIES RÉSERVATIONAJOUTEZ AU PANIER VOTRE HÉBERGEMENT ET PROFITEZ DE REMISES DE -10 à 30% ! |
|
| ❄️HIVER : | Forfaits de ski, location de matériel, cours de ski, centre aquatique/spa, sorties en raquettes |
| ☀️ÉTÉ : | Pass loisirs, forfaits VTT, forfaits piéton, randonnées guidées |
Petite résidence située sur le haut de la station, vue sur le massif du Beaufortain, le Mont Bisanne et la station des Saisies.
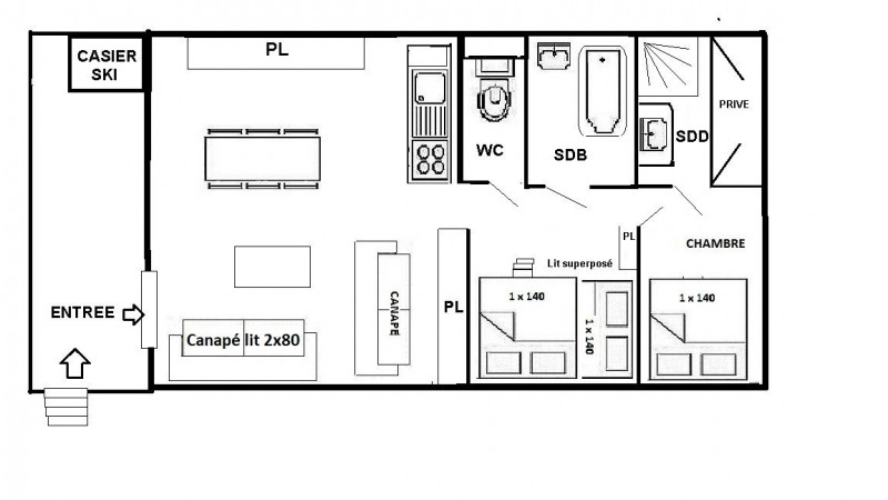
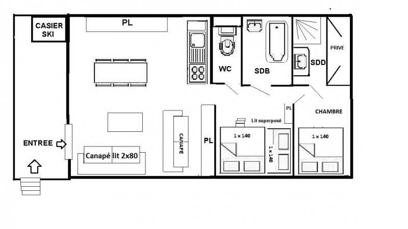
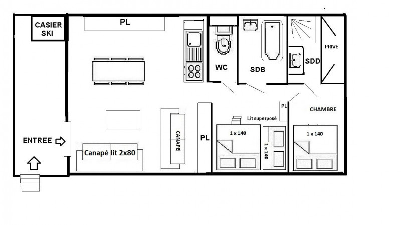
Appartement 2 pièces + coin montagne situé au rez de chaussée de la résidence (un escalier à descendre depuis l'extérieur environ 40 marches, puis accès par un petit chemin de 15m jusqu'au logement) orienté sud avec terrasse solarium.
L'appartement se compose d'un séjour avec un canapé gigogne 2x80 et cuisine équipée ouverte, d'une suite parentale avec un lit 140 (salle d'eau attenante), d'un coin montagne avec canapé lit et un lit superposé soit 2x140 (NB : le lit supérieur d'un lit superposé est interdit aux - 6 ans), d'une salle de bains et WC séparé.
Cet appartement est classé meublé de tourisme 1 étoile.
Catégorie ménage: F
Appartement 2 pièces + coin montagne situé au rez de chaussée de la résidence (un escalier à descendre depuis l'extérieur environ 40 marches, puis accès par un petit chemin de 15m jusqu'au logement) orienté sud avec terrasse solarium.
L'appartement se compose d'un séjour avec un canapé gigogne 2x80 et cuisine équipée ouverte, d'une suite parentale avec un lit 140 (salle d'eau attenante), d'un coin montagne avec canapé lit et un lit superposé soit 2x140 (NB : le lit supérieur d'un lit superposé est interdit aux - 6 ans), d'une salle de bains et WC séparé.
Cet appartement est classé meublé de tourisme 1 étoile.
Catégorie ménage: F
En Résumé
- EXPOSITION :
- sud
- Quartiers Les Saisies :
- Centre station
- ÉTAGE PAR RAPPORT AU SOL :
- rez de chaussée
- EXTÉRIEUR :
- terrasse
- SUPERFICIE :
- 51 m²
- Capacité maximale :
- 8 personnes
- TYPE DE LOGEMENT :
- deux pièces
- ANIMAUX :
- animaux interdits
- VUE :
- montagne
- Type d'hébergeur :
- Professionnel
Descriptif détaillé
- SÉJOUR :
- 1 banquette gigogne 2 pers
- CABINE :
- lits superposés
- 2 lit(s) double(s) 140 cm
- CHAMBRE 1 :
- 1 lit(s) double(s) 140 cm
- avec douche
- LITERIE :
- 4 couette(s) double(s)
- 8 oreiller(s)
- SALLE(S) DE BAINS :
- 1 salle(s) de bains avec baignoire
- SANITAIRES :
- 1 WC séparé(s)
Équipements
- ÉQUIPEMENTS CUISINE :
- four
- ÉQUIPEMENTS :
- casier à skis
- aspirateur
- STATIONNEMENT :
- parking couvert en supplément
Services
- ASSURANCE ANNULATION :
- Pour plus de sérénité, nous vous conseillons de souscrire à notre assurance annulation proposée au moment de votre réservation.
Destination
186 Chemin de la Ravire
Appartement 3 - RDC
73620
LES SAISIES
Coordonnées GPS
Latitude : 45.756781
Longitude : 6.545339
Tarifs & Disponibilités
Avis
Note :
(1 avis)
5
/ 5
Mars 2025
Jean-Marc
Plus de 55 ans
En famille
Note :
5
/ 5
Manque un livret d'accueil qui préciserait les modalités de mise en route et arrêt des chauffages individuels ainsi que du réfrigérateur et qui signerait la présence de tous les ustensiles mis à disposition
Aménagement intérieur (décoration, mobilier...)
Equipements (vaisselle et ustensiles de cuisine, électroménager...)
Confort de la literie
Entretien/ propreté
Situation géographique
Rapport qualité-prix
Avis écrit le 25/03/2025
01/04/2025
14h59
Elisa Maitre a répondu
Merci d'avoir pris le temps de partager votre retour. Nous avons bien pris en compte votre remarque et l'avons transmise au propriétaire du logement afin qu'il puisse en tenir compte. Votre avis nous aide à améliorer l'expérience de nos voyageurs. Nous espérons avoir l'occasion de vous accueillir à nouveau aux Saisies ! 😊
Avis par type de profil































