CHALETS D'EMERAUDE BAT H SAI607-H106 - Appt Studio (17550)
Présentation
Studio doté d'un balcon situé dans la résidence Les Chalets d'Emeraude Bat H dans le quartier de la Traie à proximité des pistes et rassemblement ESF. Avec accès piscine intérieure chauffée, jacuzzi et salle de fitness.
BONS PLANS AVEC LES SAISIES RÉSERVATIONAJOUTEZ AU PANIER VOTRE HÉBERGEMENT ET PROFITEZ DE REMISES DE -10 à 30% ! |
|
| ❄️HIVER : | Forfaits de ski, location de matériel, cours de ski, centre aquatique/spa, sorties en raquettes |
| ☀️ÉTÉ : | Pass loisirs, forfaits VTT, forfaits piéton, randonnées guidées |
Belle résidence de standing, à proximité de toutes commodités, à environ 1 km du centre des Saisies, avec piscine intérieur chauffée et accès jacuzzi et salle de fitness gratuit (ouverts en pleine saison d'hiver et d'été situés dans le bâtiment H).
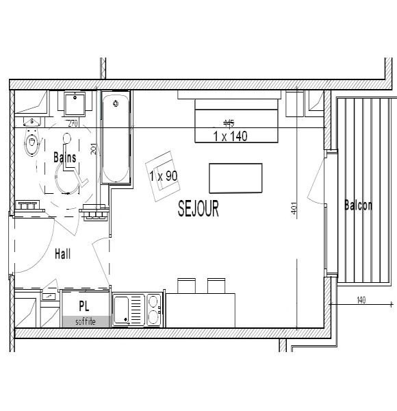
Appartement studio situé au 1er étage de la résidence avec ascenseur (un étage à monter), orienté est avec balcon.
L'appartement se compose d'un séjour avec un canapé convertible 140 et une chauffeuse 90, d'une salle de bain et WC non séparé. La kitchenette est ouverte sur le séjour.
La piscine sera accessible du 28/06 au 30/08 et du 20/12/2025 au 11/04/2026
Catégorie ménage: C
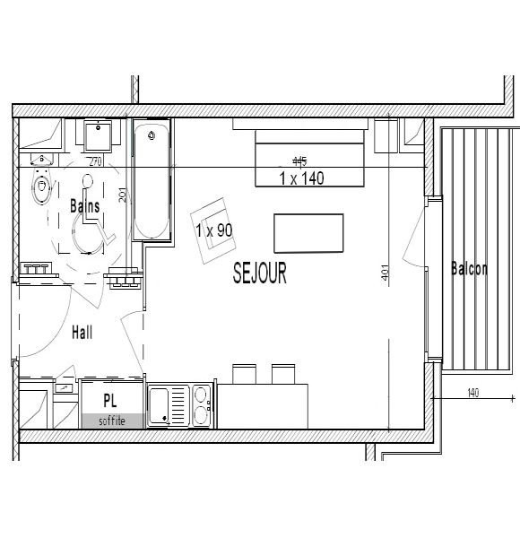
Appartement studio situé au 1er étage de la résidence avec ascenseur (un étage à monter), orienté est avec balcon.
L'appartement se compose d'un séjour avec un canapé convertible 140 et une chauffeuse 90, d'une salle de bain et WC non séparé. La kitchenette est ouverte sur le séjour.
La piscine sera accessible du 28/06 au 30/08 et du 20/12/2025 au 11/04/2026
Catégorie ménage: C
En Résumé
- EXPOSITION :
- est
- ÉTAGE PAR RAPPORT AU SOL :
- 1er étage
- EXTÉRIEUR :
- balcon
- SUPERFICIE :
- 27 m²
- Capacité maximale :
- 3 personnes
- TYPE DE LOGEMENT :
- une pièce
- ANIMAUX :
- animaux interdits
- Type d'hébergeur :
- Professionnel
Descriptif détaillé
- SÉJOUR :
- 1 chauffeuse 1 pers.
- 1 canapé lit convertible 2 personnes
- LITERIE :
- 1 couette(s) simple(s)
- 2 couverture(s) simple(s)
- 1 couette(s) double(s)
- 3 oreiller(s)
- SALLE(S) DE BAINS :
- 1 salle(s) de bains avec baignoire
- SANITAIRES :
- 1 WC dans salle de bains
Équipements
- ÉQUIPEMENTS CUISINE :
- appareil à fondue
- ÉQUIPEMENTS :
- casier à skis
- aspirateur
- STATIONNEMENT :
- parking couvert en supplément
- BIEN-ÊTRE :
- piscine intérieure chauffée
Services
- ASSURANCE ANNULATION :
- Pour plus de sérénité, nous vous conseillons de souscrire à notre assurance annulation proposée au moment de votre réservation.
Localisation
Destination
6 Route de la Traie
Appartement 106 - 1er étage - Bâtiment H
73620
LES SAISIES
Coordonnées GPS
Latitude : 45.754759
Longitude : 6.542942



























