CHALETS D'EMERAUDE BAT C SAI607-C03 - Appt 3 pièces (17706)
Présentation
Appartement avec 2 chambres doté d'un balcon situé dans la résidence Les Chalets d'Emeraude Bat C dans le quartier de la Traie à proximité des pistes et rassemblement ESF. Avec accès piscine intérieure chauffée, jacuzzi et salle de fitness. Place de parking incluse.
BONS PLANS AVEC LES SAISIES RÉSERVATIONAJOUTEZ AU PANIER VOTRE HÉBERGEMENT ET PROFITEZ DE REMISES DE -10 à 30% ! |
|
| ❄️HIVER : | Forfaits de ski, location de matériel, cours de ski, centre aquatique/spa, sorties en raquettes |
| ☀️ÉTÉ : | Pass loisirs, forfaits VTT, forfaits piéton, randonnées guidées |
Belle résidence de standing, à proximité de toutes commodités, à environ 1 km du centre des Saisies, avec piscine intérieur chauffée et accès jacuzzi et salle de fitness gratuit (ouverts en pleine saison d'hiver et d'été situés dans le bâtiment H).
Appartement 3 pièces situé au rez de chaussée surélevé de la résidence (environ 15 marches extérieurs à monter), orienté sud avec balcon avec box collectif A18
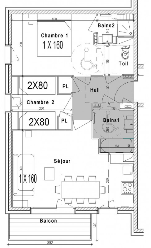
L'appartement se compose d'un séjour avec un canapé convertible 160, d'une suite parentale avec un lit 160 et salle d'eau attenante, d'une chambre avec double lits superposés 4x80 (NB: le lit supérieur d'un lit superposé est interdit aux - de 6 ans), d'une salle de bain et WC séparé. La cuisine est ouverte sur le séjour.
Cet appartement est classé meublé de tourisme 2 étoiles.
La piscine sera accessible du 28/06 au 30/08 et du 20/12/2025 au 11/04/2026
Catégorie ménage: J
Animaux de compagnie acceptés avec un supplément de 39,00 €
Appartement 3 pièces situé au rez de chaussée surélevé de la résidence (environ 15 marches extérieurs à monter), orienté sud avec balcon avec box collectif A18
L'appartement se compose d'un séjour avec un canapé convertible 160, d'une suite parentale avec un lit 160 et salle d'eau attenante, d'une chambre avec double lits superposés 4x80 (NB: le lit supérieur d'un lit superposé est interdit aux - de 6 ans), d'une salle de bain et WC séparé. La cuisine est ouverte sur le séjour.
Cet appartement est classé meublé de tourisme 2 étoiles.
La piscine sera accessible du 28/06 au 30/08 et du 20/12/2025 au 11/04/2026
Catégorie ménage: J
Animaux de compagnie acceptés avec un supplément de 39,00 €
En Résumé
- EXPOSITION :
- sud
- Quartiers Les Saisies :
- Quartier de la traie
- ÉTAGE PAR RAPPORT AU SOL :
- rez de chaussée
- EXTÉRIEUR :
- balcon
- SUPERFICIE :
- 50 m²
- Capacité maximale :
- 8 personnes
- TYPE DE LOGEMENT :
- trois pièces
- ANIMAUX :
- animaux acceptés
- animaux admis avec supplément
- petits animaux acceptés
- Animaux acceptés sous réserve d'accord du propriétaire
- Type d'hébergeur :
- Professionnel
Descriptif détaillé
- SÉJOUR :
- 1 banquette(s) BZ 160
- CHAMBRE 1 :
- 1 lit(s) double(s) 160 cm
- avec douche
- CHAMBRE 2 :
- 2 lits superposés
- LITERIE :
- 6 couette(s) double(s)
- 8 oreiller(s)
- SALLE(S) DE BAINS :
- 1 salle(s) de bains avec baignoire
- SANITAIRES :
- 1 WC séparé(s)
Équipements
- ÉQUIPEMENTS CUISINE :
- four
- ÉQUIPEMENTS :
- casier à skis
- aspirateur
- STATIONNEMENT :
- parking couvert inclus
- parking couvert en supplément
- parking privé extérieur
- parking public extérieur
- BIEN-ÊTRE :
- piscine intérieure chauffée
Services
- ASSURANCE ANNULATION :
- Pour plus de sérénité, nous vous conseillons de souscrire à notre assurance annulation proposée au moment de votre réservation.
Localisation
Destination
6 route de la Traie
Appartement 3 - RDC surélévé - Bâtiment C
73620
LES SAISIES
Coordonnées GPS
Latitude : 45.754918
Longitude : 6.542852































