CHALET REINE DES PRES ASAI217-008 - Appt 3 pièces cabine (23300)
Présentation
Situé dans le secteur des Haut Lieux, à 500m du centre station, cet appartement est situé dans le Chalet Reine des Prés composé de quelques appartements.
Au 1er étage cet appartement équivaut à un 2ème étage et bénéficie ainsi d'une très belle vue sur le Massif du Beaufortain et le Mont Bisanne.
Le chemin skieur pour ski alpin se situe à 10m de l'appartement. Un magasin de sport et d'alimentation ainsi que le restaurant de la Table des Armaillis (Bib Gourmand 2022) se trouvent à proximité de l'appartement.
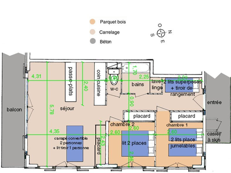
Composition du bien :
Entrée : 1 lits superposés, 1 tiroir de rangement.
Séjour : 1 canapé convertible pour 1 couple + 1 lit-tiroir 1 personne.
Cuisine : plaque électrique vitrocéramique 4 feux, four, micro-ondes, réfrigérateur 204 l avec congélateur, lave-vaisselle, cafetière.
Chambre 1 : 2 lits 1 place jumelables.
Chambre 2 : lit 2 personnes.
Salle de bain : baignoire, vasque, meuble sous vasque, lave-linge, radiateur sèche-serviettes.
WC séparé
Balcon Sud 2 transats.
Casier à ski privatif
Ménage de fin de séjour inclus.
Possibilité de location de linge et de matériel de puériculture à l'agence.
Au 1er étage cet appartement équivaut à un 2ème étage et bénéficie ainsi d'une très belle vue sur le Massif du Beaufortain et le Mont Bisanne.
Le chemin skieur pour ski alpin se situe à 10m de l'appartement. Un magasin de sport et d'alimentation ainsi que le restaurant de la Table des Armaillis (Bib Gourmand 2022) se trouvent à proximité de l'appartement.
Composition du bien :
Entrée : 1 lits superposés, 1 tiroir de rangement.
Séjour : 1 canapé convertible pour 1 couple + 1 lit-tiroir 1 personne.
Cuisine : plaque électrique vitrocéramique 4 feux, four, micro-ondes, réfrigérateur 204 l avec congélateur, lave-vaisselle, cafetière.
Chambre 1 : 2 lits 1 place jumelables.
Chambre 2 : lit 2 personnes.
Salle de bain : baignoire, vasque, meuble sous vasque, lave-linge, radiateur sèche-serviettes.
WC séparé
Balcon Sud 2 transats.
Casier à ski privatif
Ménage de fin de séjour inclus.
Possibilité de location de linge et de matériel de puériculture à l'agence.
En Résumé
- Animaux acceptés :
- Animaux non admis
- EXPOSITION :
- sud
- Quartiers Les Saisies :
- Quartier des Hauts-Lieux
- ÉTAGE PAR RAPPORT AU SOL :
- 2ème étage
- EXTÉRIEUR :
- balcon
- SUPERFICIE :
- 53 m²
- Capacité maximale :
- 9 personnes
- TYPE DE LOGEMENT :
- trois pièces
- ANIMAUX :
- animaux interdits
- VUE :
- montagne
- Type d'hébergeur :
- Professionnel
Équipements
- ÉQUIPEMENTS CUISINE :
- four
- ÉQUIPEMENTS :
- casier à skis
- STATIONNEMENT :
- parking couvert en supplément
Services
- ASSURANCE ANNULATION :
- Pour plus de sérénité, nous vous conseillons de souscrire à notre assurance annulation proposée au moment de votre réservation.
Destination
200 Rue des Prés
1er étage - Escalier de gauche
73620
HAUTELUCE
Coordonnées GPS
Latitude : 45.757482
Longitude : 6.545411



























