CHALET EGLANTINE ASAI213-001 - Appt 2 pièces (23283)
Présentation
Situé dans le secteur des Haut Lieux, à 500m du centre station, cet appartement est situé dans le Chalet Eglantine composé de 7 appartements.
Pour accéder à l'appartement, il faut descendre 25m via un chemin de neige. Situé au rez de chaussée, l'appartement plein sud, bénéficie d'une vue dégagée sur le Massif du Beaufortain et le Mont Bisanne.
Le chemin skieur pour ski alpin se situe en face de l'appartement, et le retour ski à 30 mètres. Un magasin de sport et d'alimentation ainsi que le restaurant de la Table des Armaillis (Bib Gourmand 2022) se trouvent à proximité.
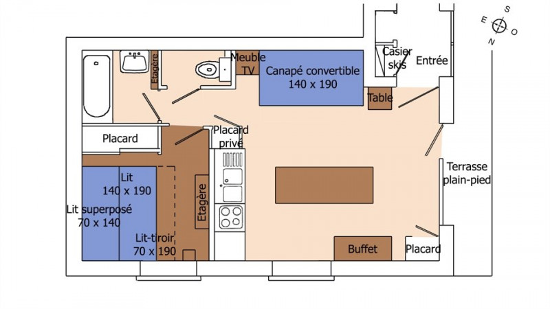
Composition du bien :
Séjour : 1 canapé convertible 2 personnes, télévision écran plat.
Cuisine : cuisinière électrique 4 plaques avec four(neuf), réfrigérateur avec conservateur, évier, Chambre : 1 lit 2 places, 1 lit 1 place superposé (matelas neuf), 1 lit-tiroir 1 place (matelas neuf).
Salle de bain : baignoire, lavabo.
W.C séparé.
Terrasse enneigée l'hiver.
Casier à ski privatif.
Ménage de fin de séjour inclus.
Possibilité de location de linge et de matériel de puériculture à l'agence.
Pour accéder à l'appartement, il faut descendre 25m via un chemin de neige. Situé au rez de chaussée, l'appartement plein sud, bénéficie d'une vue dégagée sur le Massif du Beaufortain et le Mont Bisanne.
Le chemin skieur pour ski alpin se situe en face de l'appartement, et le retour ski à 30 mètres. Un magasin de sport et d'alimentation ainsi que le restaurant de la Table des Armaillis (Bib Gourmand 2022) se trouvent à proximité.
Composition du bien :
Séjour : 1 canapé convertible 2 personnes, télévision écran plat.
Cuisine : cuisinière électrique 4 plaques avec four(neuf), réfrigérateur avec conservateur, évier, Chambre : 1 lit 2 places, 1 lit 1 place superposé (matelas neuf), 1 lit-tiroir 1 place (matelas neuf).
Salle de bain : baignoire, lavabo.
W.C séparé.
Terrasse enneigée l'hiver.
Casier à ski privatif.
Ménage de fin de séjour inclus.
Possibilité de location de linge et de matériel de puériculture à l'agence.
En Résumé
- Animaux acceptés :
- Animaux non admis
- EXPOSITION :
- sud
- Quartiers Les Saisies :
- Quartier des Hauts-Lieux
- ÉTAGE PAR RAPPORT AU SOL :
- rez de chaussée
- EXTÉRIEUR :
- terrasse
- SUPERFICIE :
- 33 m²
- Capacité maximale :
- 6 personnes
- TYPE DE LOGEMENT :
- deux pièces
- ANIMAUX :
- animaux interdits
- VUE :
- montagne
- Type d'hébergeur :
- Professionnel
Équipements
- ÉQUIPEMENTS CUISINE :
- four
- ÉQUIPEMENTS :
- casier à skis
- STATIONNEMENT :
- parking couvert en supplément
Services
- ASSURANCE ANNULATION :
- Pour plus de sérénité, nous vous conseillons de souscrire à notre assurance annulation proposée au moment de votre réservation.
Destination
Chemin de la Ravire
Rez-de-chaussée
73620
HAUTELUCE
Coordonnées GPS
Latitude : 45.757607
Longitude : 6.543419
Tarifs & Disponibilités
Avis
Note :
(2 avis)
4
/ 5
Mars 2025
Malik
De 45 à 55 ans
En famille
Note :
5
/ 5
Aménagement intérieur (décoration, mobilier...)
Equipements (vaisselle et ustensiles de cuisine, électroménager...)
Confort de la literie
Entretien/ propreté
Situation géographique
Rapport qualité-prix
Avis écrit le 24/03/2025
Février 2025
Olivier
De 45 à 55 ans
En couple
Note :
3
/ 5
Aménagement intérieur (décoration, mobilier...)
Equipements (vaisselle et ustensiles de cuisine, électroménager...)
Confort de la literie
Entretien/ propreté
Situation géographique
Rapport qualité-prix
Avis écrit le 10/02/2025
Avis par type de profil





























