BREZENIU BAT B SAI603-B17 - Appt 2 pièces (17401)
Présentation
Appartement 2 pièces avec alcôté situé dans le secteur des Carrets aux Saisies avec balcon orientation sud et à proximité des pistes et rassemblement ESF.
?BONS PLANS AVEC LES SAISIES RÉSERVATION?AJOUTEZ AU PANIER VOTRE HÉBERGEMENT ET PROFITEZ DE REMISES DE -10 à 30% ! |
|
| ❄️HIVER : | Forfaits de ski, location de matériel, cours de ski, centre aquatique/spa, sorties en raquettes |
| ☀️ÉTÉ : | Pass loisirs, forfaits VTT, forfaits piéton, randonnées guidées |
Petite résidence située dans le secteur des Carrets, possibilité de rejoindre le centre station, les pistes et rassemblements ESF par un chemin damé.
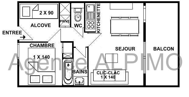
Appartement 2 pièces alcôve situé au 1 er étage de la résidence sans ascenseur (2 étages à monter), orienté sud/est avec balcon.
L'appartement se compose d'un séjour avec un canapé clic clac 140 et d'une kitchenette équipée, d'une chambre avec un lit 140, d'une alcôve avec 2 lits superposés 2x90 (NB: le lit supérieur d'un lit superposé est interdit aux - de 6 ans), d'une salle de bain et d'un WC séparé.
Cet appartement est classé meublé de tourisme 1 étoile.
Catégorie ménage: D
Appartement 2 pièces alcôve situé au 1 er étage de la résidence sans ascenseur (2 étages à monter), orienté sud/est avec balcon.
L'appartement se compose d'un séjour avec un canapé clic clac 140 et d'une kitchenette équipée, d'une chambre avec un lit 140, d'une alcôve avec 2 lits superposés 2x90 (NB: le lit supérieur d'un lit superposé est interdit aux - de 6 ans), d'une salle de bain et d'un WC séparé.
Cet appartement est classé meublé de tourisme 1 étoile.
Catégorie ménage: D
En Résumé
- Quartiers Les Saisies :
- Quartier de la traie
- ÉTAGE PAR RAPPORT AU SOL :
- 1er étage
- EXTÉRIEUR :
- balcon
- SUPERFICIE :
- 32 m²
- Capacité maximale :
- 6 personnes
- TYPE DE LOGEMENT :
- deux pièces
- ANIMAUX :
- animaux interdits
- VUE :
- montagne
- Type d'hébergeur :
- Professionnel
Descriptif détaillé
- SÉJOUR :
- 1 canapé lit convertible 2 personnes
- CABINE :
- 2 lits superposés
- CHAMBRE 1 :
- 1 lit(s) double(s) 140 cm
- LITERIE :
- 2 couette(s) simple(s)
- 1 couverture(s) simple(s)
- 2 couette(s) double(s)
- SALLE(S) DE BAINS :
- 1 salle(s) de bains avec baignoire
- SANITAIRES :
- 1 WC séparé(s)
Équipements
- ÉQUIPEMENTS :
- casier à skis
- aspirateur
- STATIONNEMENT :
- parking couvert en supplément
Services
- ASSURANCE ANNULATION :
- Pour plus de sérénité, nous vous conseillons de souscrire à notre assurance annulation proposée au moment de votre réservation.
Localisation
Destination
300 Route de la Traie
Appartement 17 - 1 er étage - Bat B
73620
LES SAISIES
Coordonnées GPS
Latitude : 45.75387
Longitude : 6.541646
Tarifs & Disponibilités
Avis
Note :
(2 avis)
4,5
/ 5
Décembre 2024
Catherine
Plus de 55 ans
En famille
Note :
5
/ 5
Tout était très bien. Mais dans le kit ménage il faudrait un peu plus de produits ménagers + 1 autre éponge pour le ménage + 1 chiffon ménage
Aménagement intérieur (décoration, mobilier...)
Equipements (vaisselle et ustensiles de cuisine, électroménager...)
Confort de la literie
Entretien/ propreté
Situation géographique
Rapport qualité-prix
Avis écrit le 30/12/2024
21/02/2025
12h31
Elisa Maitre a répondu
Merci d'avoir pris le temps de partager votre retour. Nous avons bien pris en compte votre remarque et l'avons transmise au propriétaire du logement afin qu'il puisse en tenir compte. Votre avis nous aide à améliorer l'expérience de nos voyageurs. Nous espérons avoir l'occasion de vous accueillir à nouveau aux Saisies ! 😊
Janvier 2024
GHISLAINE
Plus de 55 ans
En couple
Note :
4
/ 5
Aménagement intérieur (décoration, mobilier...)
Equipements (vaisselle et ustensiles de cuisine, électroménager...)
Confort de la literie
Entretien/ propreté
Situation géographique
Rapport qualité-prix
Avis écrit le 29/01/2024
Avis par type de profil





























