BELLEVUE SAI202-009 - Appt 2 pièces (17394)
Présentation
Appartement de 2 pièces cabine avec balcon exposé sud situé dans le quartier des Hauts Lieux à 200m des pistes et à proximité d'une superette et d'un magasin de sport.
?BONS PLANS AVEC LES SAISIES RÉSERVATION?AJOUTEZ AU PANIER VOTRE HÉBERGEMENT ET PROFITEZ DE REMISES DE -10 à 30% ! |
|
| ❄️HIVER : | Forfaits de ski, location de matériel, cours de ski, centre aquatique/spa, sorties en raquettes |
| ☀️ÉTÉ : | Pass loisirs, forfaits VTT, forfaits piéton, randonnées guidées |
Résidence sur le haut de la station (Avenue des Cîmes)
La résidence est exposée sud vue sur le Mont Bisanne et le massif du Beaufortain.
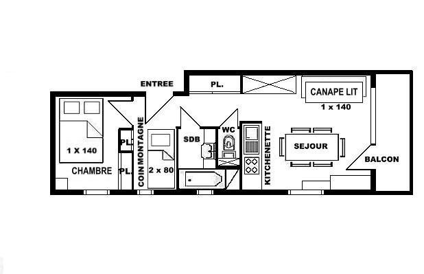
Appartement 2 pièces coin montagne situé au 2 ème étage de la résidence sans ascenseur (1 escalier à descendre en extérieur), orienté sud avec balcon.
L'appartement comprend une kitchenette équipée, un séjour avec un canapé en 140, une chambre avec un lit en 140, un coin montagne avec des lits superposés 2x80 et une salle de bains avec wc séparé (N.B : le lit supérieur des lits superposés est interdit aux - 6 ans)
Location classée meublé de tourisme 2 étoiles* et labellisée qualité confort hébergement Les Saisies 4 diamants.
Catégorie ménage: E
La résidence est exposée sud vue sur le Mont Bisanne et le massif du Beaufortain.
Appartement 2 pièces coin montagne situé au 2 ème étage de la résidence sans ascenseur (1 escalier à descendre en extérieur), orienté sud avec balcon.
L'appartement comprend une kitchenette équipée, un séjour avec un canapé en 140, une chambre avec un lit en 140, un coin montagne avec des lits superposés 2x80 et une salle de bains avec wc séparé (N.B : le lit supérieur des lits superposés est interdit aux - 6 ans)
Location classée meublé de tourisme 2 étoiles* et labellisée qualité confort hébergement Les Saisies 4 diamants.
Catégorie ménage: E
En Résumé
- EXPOSITION :
- sud
- Quartiers Les Saisies :
- Quartier des Hauts-Lieux
- ÉTAGE PAR RAPPORT AU SOL :
- 2ème étage
- EXTÉRIEUR :
- balcon
- SUPERFICIE :
- 36 m²
- Capacité maximale :
- 6 personnes
- TYPE DE LOGEMENT :
- deux pièces
- ANIMAUX :
- animaux interdits
- VUE :
- montagne
- Type d'hébergeur :
- Professionnel
Descriptif détaillé
- SÉJOUR :
- 1 banquette gigogne 2 pers
- 1 canapé lit convertible 2 personnes
- CABINE :
- 2 lits superposés
- CHAMBRE 1 :
- 1 lit(s) double(s) 140 cm
- LITERIE :
- 2 couette(s) simple(s)
- 2 couverture(s) simple(s)
- 2 couette(s) double(s)
- 6 oreiller(s)
- SALLE(S) DE BAINS :
- 1 salle(s) de bains avec baignoire
- sèche serviettes
- SANITAIRES :
- 1 WC séparé(s)
Équipements
- ÉQUIPEMENTS CUISINE :
- four
- appareil à fondue
- ÉQUIPEMENTS :
- casier à skis
- aspirateur
- ÉQUIPEMENTS MULTIMÉDIA :
- WIFI gratuit dans le logement
- STATIONNEMENT :
- parking couvert en supplément
Services
- ASSURANCE ANNULATION :
- Pour plus de sérénité, nous vous conseillons de souscrire à notre assurance annulation proposée au moment de votre réservation.
Localisation
Destination
100 chemin de la ravire
Appartement 9 - 2ème étage
73620
LES SAISIES
Coordonnées GPS
Latitude : 45.756992
Longitude : 6.544084
- DISTANCES :
- 800 m du centre station Les Saisies
- 200 m des pistes de ski alpin
- 1200 m des pistes de ski de fond
- 150 m d'un arrêt navette (en hiver)
Tarifs & Disponibilités
Avis
Note :
(3 avis)
4,67
/ 5
Février 2025
Fabien
De 45 à 55 ans
En famille
Note :
4
/ 5
Aménagement intérieur (décoration, mobilier...)
Equipements (vaisselle et ustensiles de cuisine, électroménager...)
Confort de la literie
Entretien/ propreté
Situation géographique
Rapport qualité-prix
Avis écrit le 26/02/2025
Juillet 2023
Régis
De 45 à 55 ans
En famille
Note :
5
/ 5
Aménagement intérieur (décoration, mobilier...)
Equipements (vaisselle et ustensiles de cuisine, électroménager...)
Confort de la literie
Entretien/ propreté
Situation géographique
Rapport qualité-prix
Avis écrit le 31/07/2023
Avis par type de profil






























