ALPAGES DE BISANNE BÂTIMENT C BIS101-C10 - Appt 4 pièces (17815)
Présentation
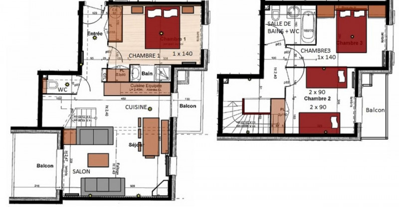
Appartement duplex avec 3 chambres et doté de 3 balcons orienté sud/est dans la résidence Alpages de Bisanne situé à Bisanne 1500 à proximité des pistes et rassemblement ESF de Bisanne. Place de parking couverte et piscine intérieure chauffée.
BONS PLANS AVEC LES SAISIES RÉSERVATIONAJOUTEZ AU PANIER VOTRE HÉBERGEMENT ET PROFITEZ DE REMISES DE -10 à 30% ! |
|
| ❄️HIVER : | Forfaits de ski, location de matériel, cours de ski, centre aquatique/spa, sorties en raquettes |
| ☀️ÉTÉ : | Pass loisirs, forfaits VTT, forfaits piéton, randonnées guidées |
Belle résidence de standing, à 5.6 Km du centre des saisies, avec piscine intérieure chauffée (ouverte en pleine saison d'hiver et d'été, située dans le bâtiment J).
Appartement duplex 4 Pièces, situé au 2ème étage de la résidence avec ascenseur, orienté Sud/est avec 3 balcons + place de parking couverte N°9 (H.2.10m; L.5m; L.2.50m sous chalet I-J/niveau - 2).
L'appartement se compose d'un séjour, d'une suite parentale avec un lit 140 et une salle d'eau attenante, d'une chambre avec un lit 140, d'une chambre avec deux fois deux lits superposés de 80 (NB: le lit supérieur d'un lit superposé est interdit aux - de 6 ans), d'une salle de bain avec WC et d'un WC séparé.
La cuisine est ouverte sur le séjour.
Cet appartement est classé meublé de tourisme 2 étoiles.
Catégorie ménage: J
NB : Accès piscine : Date d'ouverture de la piscine sur les prochaines saisons 2024/2025 :
Fermeture le Dimanche 01 septembre 2024
Ouverture le Samedi 21 décembre 2024
Fermeture le lundi 21 avril 2025 (Pâques)
Ouverture le Samedi 28 juin 2025
Fermeture le Dimanche 3 septembre 2025.
Appartement duplex 4 Pièces, situé au 2ème étage de la résidence avec ascenseur, orienté Sud/est avec 3 balcons + place de parking couverte N°9 (H.2.10m; L.5m; L.2.50m sous chalet I-J/niveau - 2).
L'appartement se compose d'un séjour, d'une suite parentale avec un lit 140 et une salle d'eau attenante, d'une chambre avec un lit 140, d'une chambre avec deux fois deux lits superposés de 80 (NB: le lit supérieur d'un lit superposé est interdit aux - de 6 ans), d'une salle de bain avec WC et d'un WC séparé.
La cuisine est ouverte sur le séjour.
Cet appartement est classé meublé de tourisme 2 étoiles.
Catégorie ménage: J
NB : Accès piscine : Date d'ouverture de la piscine sur les prochaines saisons 2024/2025 :
Fermeture le Dimanche 01 septembre 2024
Ouverture le Samedi 21 décembre 2024
Fermeture le lundi 21 avril 2025 (Pâques)
Ouverture le Samedi 28 juin 2025
Fermeture le Dimanche 3 septembre 2025.
En Résumé
- Quartiers Les Saisies :
- Bisanne 1500
- ÉTAGE PAR RAPPORT AU SOL :
- 2ème étage
- EXTÉRIEUR :
- balcon
- SUPERFICIE :
- 82 m²
- Capacité maximale :
- 8 personnes
- TYPE DE LOGEMENT :
- quatre pièces
- ANIMAUX :
- animaux interdits
- VUE :
- montagne
- Type d'hébergeur :
- Professionnel
Descriptif détaillé
- CHAMBRE 1 :
- 1 lit(s) double(s) 140 cm
- avec douche
- CHAMBRE 2 :
- 4 lits superposés
- CHAMBRE 3 :
- 1 lit(s) double(s) 140 cm
- SALLE(S) DE BAINS :
- 1 salle(s) de bains avec baignoire
- 1 salle(s) de bains avec douche
- SANITAIRES :
- 1 WC dans salle de bains
Équipements
- ÉQUIPEMENTS CUISINE :
- four
- ÉQUIPEMENTS :
- casier à skis
- aspirateur
- STATIONNEMENT :
- parking couvert inclus
- parking couvert en supplément
- parking privé extérieur
- parking public extérieur
Services
- ASSURANCE ANNULATION :
- Pour plus de sérénité, nous vous conseillons de souscrire à notre assurance annulation proposée au moment de votre réservation.
Localisation
Destination
3700 route de la Nuaz Les Rosières
Appartement 10 - 2éme étage - Bâtiment C
73270
VILLARD-SUR-DORON
Coordonnées GPS
Latitude : 45.738709
Longitude : 6.507801
Tarifs & Disponibilités
Avis
Note :
(2 avis)
3
/ 5
Février 2025
DOMINIQUE
De 35 à 44 ans
En famille
Note :
3
/ 5
Pas facile de cuisiner pour 8 adultes cuisine trop juste , accès logement dangereux, très glissant.
Aménagement intérieur (décoration, mobilier...)
Equipements (vaisselle et ustensiles de cuisine, électroménager...)
Confort de la literie
Entretien/ propreté
Situation géographique
Rapport qualité-prix
Avis écrit le 10/02/2025
Février 2023
De 25 à 34 ans
En famille
Note :
3
/ 5
Aménagement intérieur (décoration, mobilier...)
Equipements (vaisselle et ustensiles de cuisine, électroménager...)
Confort de la literie
Entretien/ propreté
Situation géographique
Rapport qualité-prix
Avis écrit le 06/02/2023
Avis par type de profil





























