5 pièces / 5 pièces cabine - ALPAGES DE BISANNE G (ALPG15)
Présentation
Charmant appartement 5 pièces cabine dans la résidence Alpages de Bisanne, bâtiment G, avec piscine. Situé à 150m du départ des pistes de Bisanne.
BONS PLANS AVEC LES SAISIES RÉSERVATIONAJOUTEZ AU PANIER VOTRE HÉBERGEMENT ET PROFITEZ DE REMISES DE -10 à 30% ! |
|
| ❄️HIVER : | Forfaits de ski, location de matériel, cours de ski, centre aquatique/spa, sorties en raquettes |
| ☀️ÉTÉ : | Pass loisirs, forfaits VTT, forfaits piéton, randonnées guidées |
Appartement avec parking couvert n°116 niveau -1, et accés Piscine.
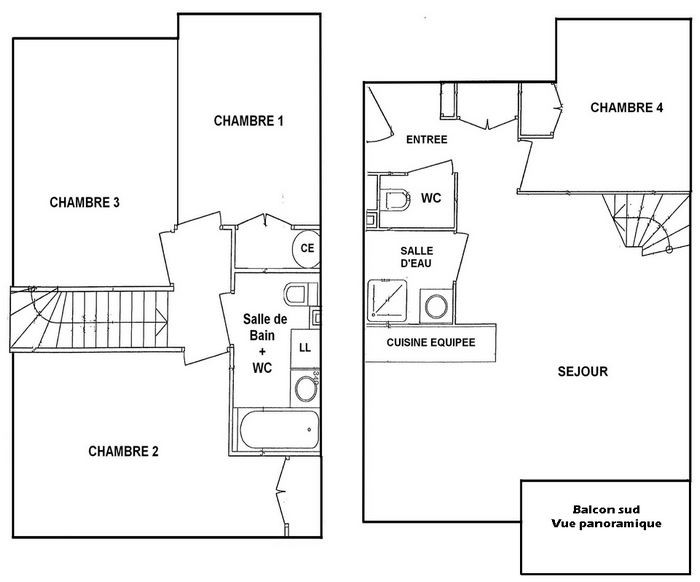
- jolie appartement type 5 PIECES 2 SALLES DE BAIN (réference: ALPG15)
- Surface : 120 m² + BALCON : 10,20 m²,
- Etage : 3ème avec 2 niveaux à monter,et ascenseur.
- Couchages : 8/10
- chambre bas : 1 lit 140
- chambre haut 1 (velux) : 1 clic clac + 2 lits jumeaux 90,
- chambre haut 2 (sud) : 1 lit 160,
- chambre haut 3 (vélux) : 2 lits jumeaux 90,
- 2 Salles de bains : 1 baignoire, 1 douche, 2 WC dont 1 séparé,
- Exposition : SUD, avec vue sur les massifs du Beaufortain entre les bâtiments,
- Equipements particuliers : Télévision, lave vaisselle, Ecran plat, lecteur DVD, micro onde, four traditionnel, cafetière italienne, bouilloire électrique, appareil à raclette et pierrade.
- Literie : 13 oreillers, 2 couettes 90, 3 couettes 140.
- Remarques
- Un casier à skis est à votre disposition,
- Animaux non admis,
- Appartement tout équipé ( non fourni : draps et linge de maison ),
- Produits entretiens non fournis
- revêtement sol : parquet et carrelage,
- Appartement non fumeur et animaux non admis, Appartement loué avec un garage type parking couvert,.
- GARAGE n°116 situé au niveau -1.
- jolie appartement type 5 PIECES 2 SALLES DE BAIN (réference: ALPG15)
- Surface : 120 m² + BALCON : 10,20 m²,
- Etage : 3ème avec 2 niveaux à monter,et ascenseur.
- Couchages : 8/10
- chambre bas : 1 lit 140
- chambre haut 1 (velux) : 1 clic clac + 2 lits jumeaux 90,
- chambre haut 2 (sud) : 1 lit 160,
- chambre haut 3 (vélux) : 2 lits jumeaux 90,
- 2 Salles de bains : 1 baignoire, 1 douche, 2 WC dont 1 séparé,
- Exposition : SUD, avec vue sur les massifs du Beaufortain entre les bâtiments,
- Equipements particuliers : Télévision, lave vaisselle, Ecran plat, lecteur DVD, micro onde, four traditionnel, cafetière italienne, bouilloire électrique, appareil à raclette et pierrade.
- Literie : 13 oreillers, 2 couettes 90, 3 couettes 140.
- Remarques
- Un casier à skis est à votre disposition,
- Animaux non admis,
- Appartement tout équipé ( non fourni : draps et linge de maison ),
- Produits entretiens non fournis
- revêtement sol : parquet et carrelage,
- Appartement non fumeur et animaux non admis, Appartement loué avec un garage type parking couvert,.
- GARAGE n°116 situé au niveau -1.
En Résumé
- EXPOSITION :
- sud
- Quartiers Les Saisies :
- Bisanne 1500
- ÉTAGE PAR RAPPORT AU SOL :
- 3ème étage
- EXTÉRIEUR :
- balcon
- SUPERFICIE :
- 120 m²
- Capacité maximale :
- 10 personnes
- TYPE DE LOGEMENT :
- cinq pièces
- cinq pièces duplex
- cinq pièces mezzanine
- appartement
- ANIMAUX :
- animaux interdits
- Type d'hébergeur :
- Professionnel
Descriptif détaillé
- SÉJOUR :
- sans couchage
- CHAMBRE 1 :
- 1 lit(s) double(s) 140 cm
- CHAMBRE 2 :
- 1 canapé(s) clic-clac 2 pers
- 2 lit(s) simple(s)
- CHAMBRE 3 :
- lit(s) double(s) 160 cm
- CHAMBRE 4 :
- 2 lit(s) simple(s) 90 cm
- LITERIE :
- 13 oreiller(s)
- SALLE(S) DE BAINS :
- 1 salle(s) de bains avec baignoire
- 1 salle(s) de bains avec douche
- SANITAIRES :
- 1 WC séparé(s)
- 1 WC dans salle de bains
Équipements
- ÉQUIPEMENTS CUISINE :
- four
- plaques de cuisson
- lave-vaisselle
- bouilloire électrique
- grille-pain
- service à raclette
- cafetière à filtre
- appareil à raclette
- appareil à pierrade
- barbecue électrique
- micro-ondes
- ÉQUIPEMENTS :
- casier à skis
- ÉQUIPEMENTS MULTIMÉDIA :
- télévision écran plat dans le séjour
- STATIONNEMENT :
- parking couvert inclus
- BIEN-ÊTRE :
- piscine intérieure chauffée
- BÉBÉ / ENFANT :
- lit bébé avec supplément
- chaise bébé avec supplément
- baignoire bébé en supplément
Services
- ASSURANCE ANNULATION :
- Pour plus de sérénité, nous vous conseillons de souscrire à notre assurance annulation proposée au moment de votre réservation.
- SERVICES EN SUPPLÉMENT :
- location draps
- location linge de toilette
- ménage de fin de séjour
- lits faits à l'arrivée
Localisation
Destination
3700 Route de la Nuaz
Bisanne 1500
73270
VILLARD SUR DORON
Coordonnées GPS
Latitude : 45.738417
Longitude : 6.506964
Tarifs & Disponibilités
Avis
Note :
(1 avis)
4
/ 5
Février 2024
CATHERINE
De 45 à 55 ans
En famille
Note :
4
/ 5
Aménagement intérieur (décoration, mobilier...)
Equipements (vaisselle et ustensiles de cuisine, électroménager...)
Confort de la literie
Entretien/ propreté
Situation géographique
Rapport qualité-prix
Avis écrit le 05/02/2024
Avis par type de profil













































