4 pièces / 4 pièces cabine - TAVAILLON (TAV027)
Présentation
Appartement de 4 pièces et 2 salles de bain avec mezzanine sous-pente et balcon exposé sud, loué avec Garage. Situé dans la résidence Tavaillon dans le coeur de la station, à 200m des pistes à proximités des commerces.
|
|||||||
SUPERBE APPARTEMENT 4 PIECES MEZZANINE 2 SALLES DE BAINS (réference: TAV027) LOUÉ AVEC GARAGE
Classé en meublé de tourisme 2 étoiles
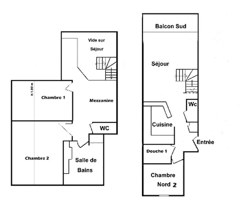
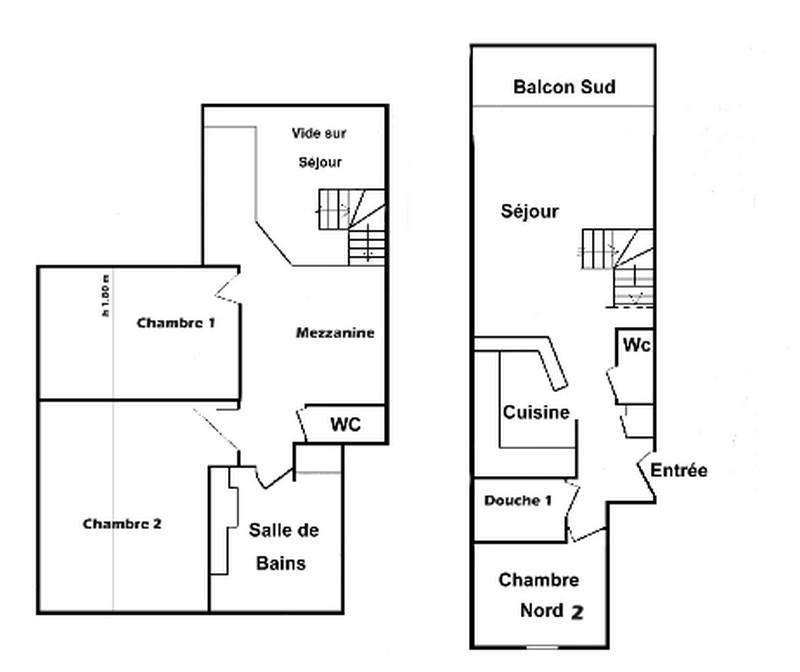
Surface : 84.00 m² dont 23 m² de surface utile à moins d'1.80 m, Balcon sud : 5.28 m²,
Etage : 3 ème avec accès direct au 2ème à droite du Crédit Agricole,
Couchages : 8
- chambre 1 : 1 lit de 140*200,
- chambre 2 : 2 lits de 90,
- chambre bas : 1 lit de 140*200,
- mezzanine : 1 BZ 140,
- Salle de bains haut : 1 douche et 1 baignoire d'angle,
- Salle de bains bas : 1 douche. 2 WC séparés,
Exposition : sud,
Equipements particuliers : lave-vaisselle, wifi (sous réserve) téléviseur écran plat (TV d'orange), lecteur CD / radio, cafetière électrique, bouilloire électrique, service à raclette, grille-pain, mixer, four + four micro-ondes,
Attention utilisation interdite du poêle cheminée
LITERIE : 4 couvertures 140, 3 couettes 140, 2 couettes 90, 8 oreillers.
REMARQUES
- Appartement tout équipé, ( non fourni : draps et linge de maison ),
- Produits entretiens non fournis
- Appartement non fumeur,
- Un casier à skis est à votre disposition.
- Animaux non admis.
loué avec GARAGE TYPE BOX FERME INDIVIDUEL ( réference: BTAV031)
Accès direct par la rue des moliettes sous la résidence TAVAILLON, dans les garages face à l'arrière de la résidence VILLAGE 3.
3 ème porte à droite de l'entrée n°86 du TAVAILLON.
Hauteur passage porte : 1.99 m
Largeur passage porte : 2.09 m
Largeur intérieure : 2.50 m env
Profondeur : 10 m env
Surface : 24.13 m²
Attention possibilité de deux voitures de moins de 4m chacune.
Classé en meublé de tourisme 2 étoiles
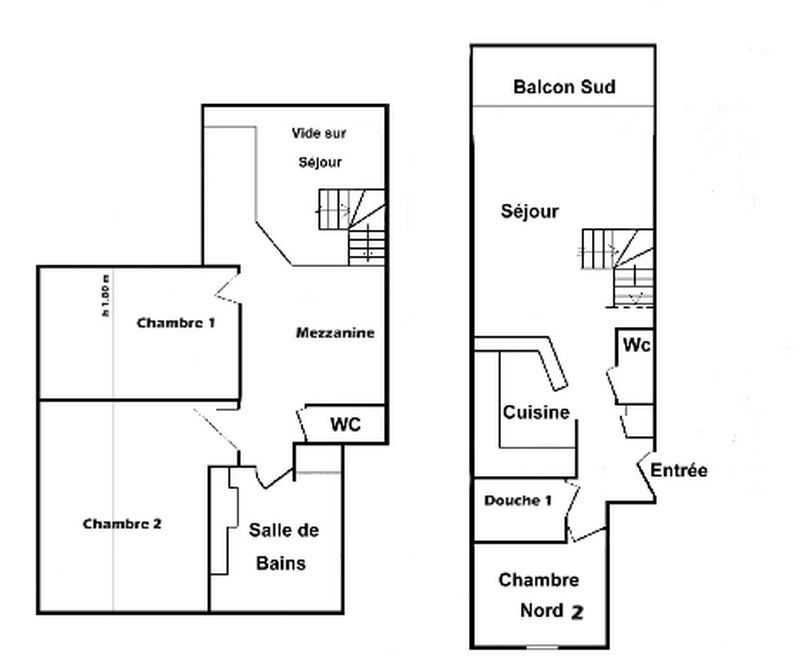
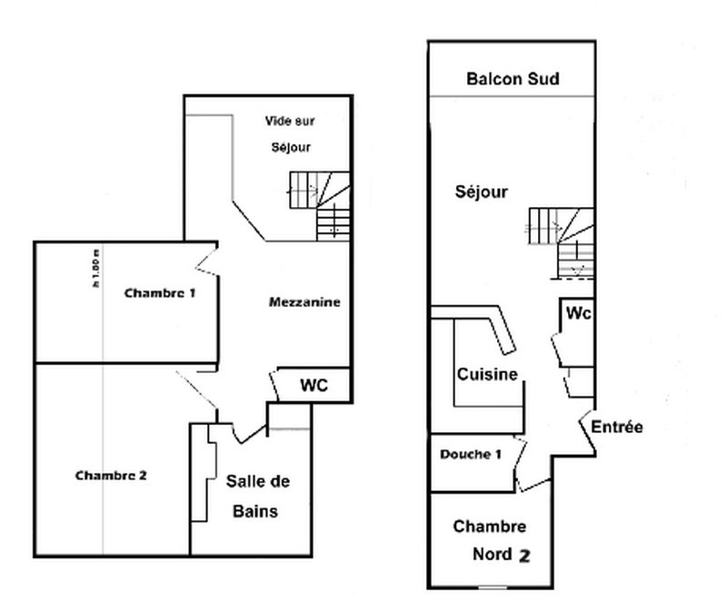
Surface : 84.00 m² dont 23 m² de surface utile à moins d'1.80 m, Balcon sud : 5.28 m²,
Etage : 3 ème avec accès direct au 2ème à droite du Crédit Agricole,
Couchages : 8
- chambre 1 : 1 lit de 140*200,
- chambre 2 : 2 lits de 90,
- chambre bas : 1 lit de 140*200,
- mezzanine : 1 BZ 140,
- Salle de bains haut : 1 douche et 1 baignoire d'angle,
- Salle de bains bas : 1 douche. 2 WC séparés,
Exposition : sud,
Equipements particuliers : lave-vaisselle, wifi (sous réserve) téléviseur écran plat (TV d'orange), lecteur CD / radio, cafetière électrique, bouilloire électrique, service à raclette, grille-pain, mixer, four + four micro-ondes,
Attention utilisation interdite du poêle cheminée
LITERIE : 4 couvertures 140, 3 couettes 140, 2 couettes 90, 8 oreillers.
REMARQUES
- Appartement tout équipé, ( non fourni : draps et linge de maison ),
- Produits entretiens non fournis
- Appartement non fumeur,
- Un casier à skis est à votre disposition.
- Animaux non admis.
loué avec GARAGE TYPE BOX FERME INDIVIDUEL ( réference: BTAV031)
Accès direct par la rue des moliettes sous la résidence TAVAILLON, dans les garages face à l'arrière de la résidence VILLAGE 3.
3 ème porte à droite de l'entrée n°86 du TAVAILLON.
Hauteur passage porte : 1.99 m
Largeur passage porte : 2.09 m
Largeur intérieure : 2.50 m env
Profondeur : 10 m env
Surface : 24.13 m²
Attention possibilité de deux voitures de moins de 4m chacune.
En Résumé
- EXPOSITION :
- sud
- Quartiers Les Saisies :
- Centre station
- ÉTAGE PAR RAPPORT AU SOL :
- 3ème étage
- EXTÉRIEUR :
- balcon
- SUPERFICIE :
- 61 m²
- Capacité maximale :
- 8 personnes
- TYPE DE LOGEMENT :
- quatre pièces
- quatre pièces cabine
- quatre pièces mezzanine
- ANIMAUX :
- animaux interdits
- Type d'hébergeur :
- Professionnel
Descriptif détaillé
- SÉJOUR :
- Canapé sans couchage
- CHAMBRE 1 :
- 1 lit(s) double(s) 140 cm
- CHAMBRE 2 :
- 2 lit(s) simple(s) 90 cm
- chambre mansardée
- CHAMBRE 3 :
- 1 lit(s) double(s) 140 cm
- MEZZANINE :
- 1 banquette(s) BZ 2 pers
- LITERIE :
- 2.00 couverture(s) simple(s)
- 2.00 couverture(s) double(s)
- 8 oreiller(s)
- SALLE(S) DE BAINS :
- 1 salle(s) de bains avec douche
- Salle de bains avec baignoire et douche
- SANITAIRES :
- 2 WC séparé(s)
Équipements
- ÉQUIPEMENTS CUISINE :
- four
- four micro-ondes
- micro-ondes / grill
- plaques vitrocéramiques
- lave-vaisselle
- bouilloire électrique
- grille-pain
- appareil à raclette
- ÉQUIPEMENTS :
- casier à skis
- ÉQUIPEMENTS MULTIMÉDIA :
- télévision écran plat dans le séjour
- WIFI gratuit dans le logement
- radio CD
- STATIONNEMENT :
- garage inclus (box)
- CHEMINÉE / POÊLE :
- Cheminée ou poêle décoratifs (non utilisables)
Services
- ASSURANCE ANNULATION :
- Pour plus de sérénité, nous vous conseillons de souscrire à notre assurance annulation proposée au moment de votre réservation.
- SERVICES EN SUPPLÉMENT :
- location draps
- location linge de toilette
- ménage de fin de séjour
- lits faits à l'arrivée
Localisation
Destination
Les Saisies
73620
HAUTELUCE
Coordonnées GPS
Latitude : 45.756730
Longitude : 6.539845






































