3 pièces / 3 pièces cabine - ISABELLA D (ISAD50)
Présentation
Appartement style montagne de 3 pièces avec mezzanine et balcon orienté ouest situé dans la résidence Isabelle D au coeur du village et à 300m des pistes.
|
|||||||
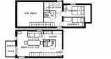
- APPARTEMENT 3 PIECES DUPLEX (réference: ISAD50)
- Surface : 40m² + 3.49m² de surface aménagée + 3.70m² balcon ouest,
- Etage : 4 ème, 3,5 étages à monter.
- Couchages : 6
- chambre nord : 1 lit de 140,
- chambre sud : 2 lits superposés,
- séjour : 1 convertible,
- Salle de bains : baignoire avec 2 vasques, 2 WC séparés,
- Exposition : ouest, vue sur les pistes et le MONT BISANNE, avec des fenêtres sud,
- Equipement : Télévision, lave vaisselle, lave linge, cafetière électrique, combi four, fer à repasser
LITERIE : 7 oreillers, 5 couvertures, 5 couettes 90, 1 couette 140.
- REMARQUES
- Appartement tout équipé, ( non fourni : draps et linge de maison ), Produits entretiens non fournis
- Un casier à skis est à votre disposition .
- Surface : 40m² + 3.49m² de surface aménagée + 3.70m² balcon ouest,
- Etage : 4 ème, 3,5 étages à monter.
- Couchages : 6
- chambre nord : 1 lit de 140,
- chambre sud : 2 lits superposés,
- séjour : 1 convertible,
- Salle de bains : baignoire avec 2 vasques, 2 WC séparés,
- Exposition : ouest, vue sur les pistes et le MONT BISANNE, avec des fenêtres sud,
- Equipement : Télévision, lave vaisselle, lave linge, cafetière électrique, combi four, fer à repasser
LITERIE : 7 oreillers, 5 couvertures, 5 couettes 90, 1 couette 140.
- REMARQUES
- Appartement tout équipé, ( non fourni : draps et linge de maison ), Produits entretiens non fournis
- Un casier à skis est à votre disposition .
En Résumé
- EXPOSITION :
- sud
- ouest
- Quartiers Les Saisies :
- Centre station
- ÉTAGE PAR RAPPORT AU SOL :
- 4ème étage
- EXTÉRIEUR :
- balcon
- SUPERFICIE :
- 40 m²
- Capacité maximale :
- 6 personnes
- TYPE DE LOGEMENT :
- trois pièces
- trois pièces cabine
- trois pièces duplex alcôve
- ANIMAUX :
- animaux interdits
- Type d'hébergeur :
- Professionnel
Descriptif détaillé
- SÉJOUR :
- 1 canapé lit convertible 2 personnes
- CHAMBRE 1 :
- 1 lit(s) double(s) 140 cm
- CHAMBRE 2 :
- 2 lits superposés
- LITERIE :
- 7 oreiller(s)
- SALLE(S) DE BAINS :
- 2 salle(s) de bains avec baignoire
- SANITAIRES :
- 2 WC séparé(s)
Équipements
- ÉQUIPEMENTS CUISINE :
- four multi fonctions
- plaques de cuisson
- réfrigérateur
- ÉQUIPEMENTS :
- casier à skis
- lave-linge
Services
- ASSURANCE ANNULATION :
- Pour plus de sérénité, nous vous conseillons de souscrire à notre assurance annulation proposée au moment de votre réservation.
- SERVICES EN SUPPLÉMENT :
- location draps
- location linge de toilette
- ménage de fin de séjour
- lits faits à l'arrivée
Localisation
Destination
11 Rue du Mirantin
73620
LES SAISIES
Coordonnées GPS
Latitude : 45.757591
Longitude : 6.539333
Tarifs & Disponibilités
Avis
Note :
(1 avis)
5
/ 5
Mars 2024
Martine
Plus de 55 ans
En famille
Note :
5
/ 5
Aménagement intérieur (décoration, mobilier...)
Equipements (vaisselle et ustensiles de cuisine, électroménager...)
Confort de la literie
Entretien/ propreté
Situation géographique
Rapport qualité-prix
Avis écrit le 25/03/2024
Avis par type de profil





























