3 pièces / 3 pièces cabine - CRISTAL 6 (CRI602)
Présentation
Appartement 3 pièces cabine aux pieds des pistes de ski situé dasns la résidence Cristal 6, au centre de la station des Saisies. Accès aux commerces à 200m.
Réservable uniquement en Dimanche - Dimanche.
Réservable uniquement en Dimanche - Dimanche.

TRES BEL APPARTEMENT type 3 PIECES CABINE 2 SALLES DE BAIN entièrement carrelé. (réference: CRI602)
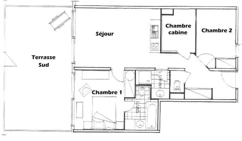
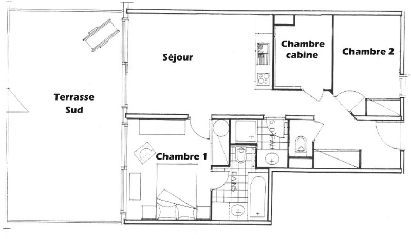
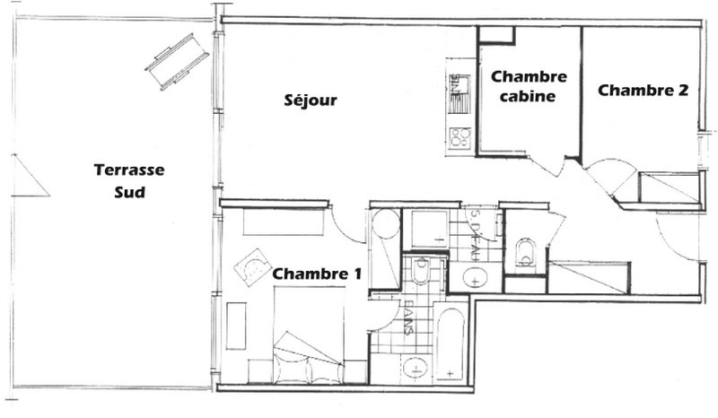
- Surface : 53.30 m² , SUPERBE TERRASSE SUD avec portillon : 29,60 m² ,
- Etage : rez de chaussée surélevé,
- Accès : direct au 2ème, descendre deux étages,
-Classé en meublé de tourisme 2 étoiles
- Couchages : 8
- séjour : 1 convertible clic clac 140,
- chambre 1 : au sud avec grande baie vitrée et salle de bains : 1 lit de 160,
- chambre 2 : style cabine ( inferieur à 9m²): 2 lits superposés 90,
- chambre 3: au nord : 1 lit de 140,
- 2 Salles de bains, 2 WC : - Baignoire avec WC
- douche, WC séparés
- Exposition : sud, BELLE VUE sur les pistes et sur le massif du BEAUFORTAIN,
- Equipements particuliers : téléviseur, lave vaisselle, lave linge, four micro-ondes, cafetière,plaques vitroceramique 4 feux , théière électrique, grille pain électrique, appareil à raclette multi crêpes, barbecue électrique, robot ménager, transats, salon de jardin, fer et table à repasser, ...
- LITERIE : 1 couette 140, 1 couette 160 ,2 couettes 90, 6 oreillers.
- REMARQUES
- Appartement tout équipé, ( non fourni : Draps et linge de maison ),
- Produits entretiens non fournis
- Un casier à skis est à votre disposition,
- Animaux tolérés.
- Surface : 53.30 m² , SUPERBE TERRASSE SUD avec portillon : 29,60 m² ,
- Etage : rez de chaussée surélevé,
- Accès : direct au 2ème, descendre deux étages,
-Classé en meublé de tourisme 2 étoiles
- Couchages : 8
- séjour : 1 convertible clic clac 140,
- chambre 1 : au sud avec grande baie vitrée et salle de bains : 1 lit de 160,
- chambre 2 : style cabine ( inferieur à 9m²): 2 lits superposés 90,
- chambre 3: au nord : 1 lit de 140,
- 2 Salles de bains, 2 WC : - Baignoire avec WC
- douche, WC séparés
- Exposition : sud, BELLE VUE sur les pistes et sur le massif du BEAUFORTAIN,
- Equipements particuliers : téléviseur, lave vaisselle, lave linge, four micro-ondes, cafetière,plaques vitroceramique 4 feux , théière électrique, grille pain électrique, appareil à raclette multi crêpes, barbecue électrique, robot ménager, transats, salon de jardin, fer et table à repasser, ...
- LITERIE : 1 couette 140, 1 couette 160 ,2 couettes 90, 6 oreillers.
- REMARQUES
- Appartement tout équipé, ( non fourni : Draps et linge de maison ),
- Produits entretiens non fournis
- Un casier à skis est à votre disposition,
- Animaux tolérés.
En Résumé
- EXPOSITION :
- sud
- Quartiers Les Saisies :
- Centre station
- ÉTAGE PAR RAPPORT AU SOL :
- rez de chaussée
- EXTÉRIEUR :
- terrasse
- SUPERFICIE :
- 53.3 m²
- Capacité maximale :
- 8 personnes
- TYPE DE LOGEMENT :
- trois pièces
- trois pièces cabine
- ANIMAUX :
- animaux acceptés
- Type d'hébergeur :
- Professionnel
Descriptif détaillé
- SÉJOUR :
- 1 canapé lit convertible 2 personnes
- CHAMBRE 1 :
- 1 lit(s) double(s) 160 cm
- avec baignoire
- CHAMBRE 2 :
- 2 lits superposés
- CHAMBRE 3 :
- 1 lit(s) double(s) 140 cm
- LITERIE :
- 9 oreiller(s)
- SALLE(S) DE BAINS :
- 1 salle(s) de bains avec baignoire
- 1 salle(s) de bains avec douche
- SANITAIRES :
- 2 WC séparé(s) ou dans la salle de bains
Équipements
- ÉQUIPEMENTS CUISINE :
- plaques de cuisson
- réfrigérateur
- bouilloire électrique
- service à raclette
- crêpière électrique
- barbecue électrique
- ÉQUIPEMENTS :
- casier à skis
- lave-linge
- table à repasser
Services
- ASSURANCE ANNULATION :
- Pour plus de sérénité, nous vous conseillons de souscrire à notre assurance annulation proposée au moment de votre réservation.
- SERVICES EN SUPPLÉMENT :
- location draps
- location linge de toilette
- ménage de fin de séjour
- lits faits à l'arrivée
Localisation
Destination
111 Chemin Cristal
73620
LES SAISIES
Coordonnées GPS
Latitude : 45.756573
Longitude : 6.537906
Tarifs & Disponibilités
Avis
Note :
(1 avis)
5
/ 5
Mars 2020
Nathalie
De 45 à 55 ans
En famille
Note :
5
/ 5
Très bel appartement très bien situé
Tout ce qu'il faut à l'intérieur 2 SDB et 2 WC très appréciable.
Calme et une belle terrasse avec baie vitrée
À recommander
Aménagement intérieur (décoration, mobilier...)
Equipements (vaisselle et ustensiles de cuisine, électroménager...)
Confort de la literie
Entretien/ propreté
Situation géographique
Rapport qualité-prix
Avis écrit le 19/03/2020
Avis par type de profil





































