3 pièces / 3 pièces cabine - CHALET JORASSE 1 D (JO1D01)
Présentation
Appartement de standing de 3 pièces et deux salles de bain. Dispose d'une terasse exposé sud-est et d'un parking. Situé dans le Chalet Jorasse au centre station, à 100m des pistes et à proximité des commerces.

APPARTEMENT DE STANDING NEUF (référence : JO1D01)
Type 3 PIECES 2 SALLES DE BAIN loué avec parking.
Appartement en RdJ exposé plein sud, situé dans un chalet de 4 logements au sein d’une très belle copropriété idéalement située en avant du centre des Saisies au 225 Route de Chenavelle. Tranquillité et standing à 100m des pistes. Commerces 600m.
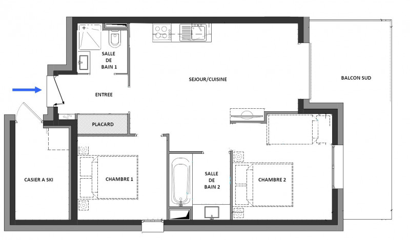
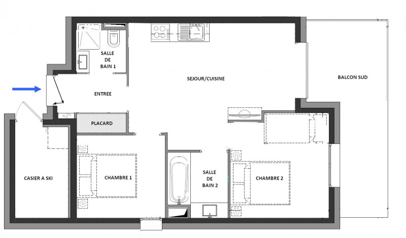
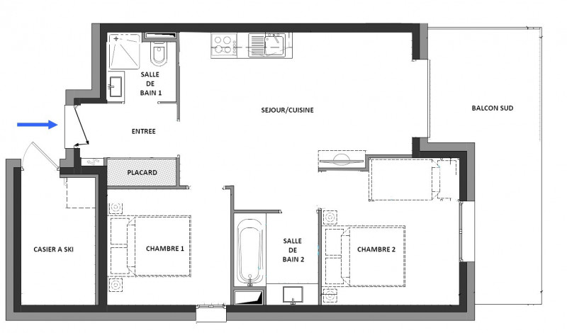
Surface : 47m² + Terrasse : 12m²
Etage : Rez de jardin, accès facile qu'un niveau à descendre
Couchages : 6 personnes - (8 tolérés)
- séjour : 1 canapé convertible 140
- chambre sud : 2 lits superposés + 2 lits jumeau rapprochables 80 x 190
- chambre ouest : 1 lit double 160 x 200
2 Salles de bain (1 douche, 1 bain)
1 wc non séparé dans la seconde sdb avec douche
Exposition : Sud-Est
Equipements nombreux : Tv, lave vaisselle, lave linge, four,micro- ondes cafetière, bouilloire, grille pain, appareil à raclette, table de jardin, sèche cheveux, wifi (sous réserve)...
Literies : 2 grandes couettes, 4 petites couettes, 8 oreillers...
REMARQUES
- Un casier à skis situé au niveau du logement est à votre disposition,
- Appartement tout équipé,(draps et linge de maison en supplément),
- Produits entretiens non fournis
- Option ménage en supplément,
- Animaux tolérés,
- Stationnements extérieur banalisé dans la rue de chenavelle ou parking couvert n°17 identifié "D01" situé 1er niveau des garages, 9ème emplacement sur la droite.
- Appartement non fumeur,
- Ce logement est alimenté en électricité verte.
Type 3 PIECES 2 SALLES DE BAIN loué avec parking.
Appartement en RdJ exposé plein sud, situé dans un chalet de 4 logements au sein d’une très belle copropriété idéalement située en avant du centre des Saisies au 225 Route de Chenavelle. Tranquillité et standing à 100m des pistes. Commerces 600m.
Surface : 47m² + Terrasse : 12m²
Etage : Rez de jardin, accès facile qu'un niveau à descendre
Couchages : 6 personnes - (8 tolérés)
- séjour : 1 canapé convertible 140
- chambre sud : 2 lits superposés + 2 lits jumeau rapprochables 80 x 190
- chambre ouest : 1 lit double 160 x 200
2 Salles de bain (1 douche, 1 bain)
1 wc non séparé dans la seconde sdb avec douche
Exposition : Sud-Est
Equipements nombreux : Tv, lave vaisselle, lave linge, four,micro- ondes cafetière, bouilloire, grille pain, appareil à raclette, table de jardin, sèche cheveux, wifi (sous réserve)...
Literies : 2 grandes couettes, 4 petites couettes, 8 oreillers...
REMARQUES
- Un casier à skis situé au niveau du logement est à votre disposition,
- Appartement tout équipé,(draps et linge de maison en supplément),
- Produits entretiens non fournis
- Option ménage en supplément,
- Animaux tolérés,
- Stationnements extérieur banalisé dans la rue de chenavelle ou parking couvert n°17 identifié "D01" situé 1er niveau des garages, 9ème emplacement sur la droite.
- Appartement non fumeur,
- Ce logement est alimenté en électricité verte.
En Résumé
- EXPOSITION :
- sud
- Quartiers Les Saisies :
- Quartier de la traie
- EXTÉRIEUR :
- terrasse
- SUPERFICIE :
- 47 m²
- Capacité maximale :
- 6 personnes
- TYPE DE LOGEMENT :
- trois pièces
- trois pièces cabine
- ANIMAUX :
- animaux acceptés
- Type d'hébergeur :
- Professionnel
Descriptif détaillé
- SÉJOUR :
- 1 canapé lit convertible 2 personnes
- CHAMBRE 1 :
- 2 lits superposés
- 2 lits simples jumelables
- CHAMBRE 2 :
- 1 lit(s) double(s) 160 cm
- SALLE(S) DE BAINS :
- 1 salle(s) de bains avec baignoire
- 1 salle(s) de bains avec douche
- SANITAIRES :
- 1 WC séparé(s)
- 1 WC dans salle de bains
Équipements
- ÉQUIPEMENTS CUISINE :
- four
- plaques de cuisson
- lave-vaisselle
- réfrigérateur
- bouilloire électrique
- grille-pain
- appareil à raclette
- ÉQUIPEMENTS :
- casier à skis
- lave-linge
- ÉQUIPEMENTS MULTIMÉDIA :
- WIFI gratuit dans le logement
- WIFI gratuit dans l'espace salon (réception)
- WIFI payant dans le logement
Services
- ASSURANCE ANNULATION :
- Pour plus de sérénité, nous vous conseillons de souscrire à notre assurance annulation proposée au moment de votre réservation.
Localisation
Destination
BATIMENT D
225 ROUTE DE CHENAVELLE
73620
HAUTELUCE
Coordonnées GPS
Latitude : 45.755196
Longitude : 6.541722
Tarifs & Disponibilités
Avis
Note :
(2 avis)
5
/ 5
Août 2022
Nicolas
De 35 à 44 ans
En famille
Note :
5
/ 5
Aménagement intérieur (décoration, mobilier...)
Equipements (vaisselle et ustensiles de cuisine, électroménager...)
Confort de la literie
Entretien/ propreté
Situation géographique
Rapport qualité-prix
Avis écrit le 24/08/2022
Mars 2021
Brigitte
Plus de 55 ans
En couple
Note :
5
/ 5
Aménagement intérieur (décoration, mobilier...)
Equipements (vaisselle et ustensiles de cuisine, électroménager...)
Confort de la literie
Entretien/ propreté
Situation géographique
Rapport qualité-prix
Avis écrit le 24/03/2021
Avis par type de profil



































