3 pièces / 3 pièces cabine - CHALET DES CIMES (CIMF41)
Présentation
Magnifique appartement 3 pièces cabine dans la résidence Chalets des Cimes situé au centre de la station des Saisies. Accès direct aux pistes à 50m.
SUPERBE APPARTEMENT NEUF AU COEUR DE LA STATION loué avec parking couvert (pmr) (référence : CIMF41)
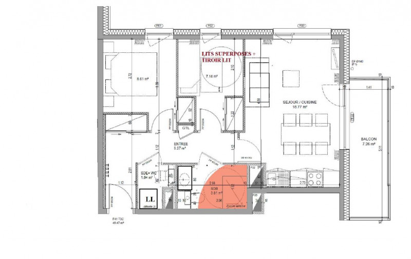
Type 3 PIECES 1 SALLE DE BAIN (PMR) + 2 WC
Classé en meublé de tourisme 3 étoiles
Surface : 48m² + balcon : 7m²
Accès :
Etage : 4ème (résidence avec ascenseur)
Couchages : 6
- séjour : 1 canapé convertible 140
- chambre 1 : 1 lit 140
- chambre 2 : 2 lits superposés 90
Sanitaires accessibles aux personnes à mobilité réduite (pmr) avec douche et wc
Un second wc séparé
Exposition : Est avec vue sur les montagnes
Equipements nombreux : Tv, lave vaisselle, Lave Linge, Sèche linge, four traditionnel,micro-ondes, cafetière électrique + cafetière senseo, bouilloire, grille pain, table de jardin, Pierrade...
Literies : couettes, oreillers
REMARQUES
- Un casier à skis situé niv +2 (avec sèche chaussure) est à votre disposition,
- Appartement tout équipé, (non fourni draps et linge de maison),
- Produits entretiens non fournis
- Appartement non fumeur.
- Appartement loué avec le parking couvert n°108 (hauteur max 2.08m)
- Animaux admis
- Ce logement est alimenté en éléctricité verte.
Type 3 PIECES 1 SALLE DE BAIN (PMR) + 2 WC
Classé en meublé de tourisme 3 étoiles
Surface : 48m² + balcon : 7m²
Accès :
Etage : 4ème (résidence avec ascenseur)
Couchages : 6
- séjour : 1 canapé convertible 140
- chambre 1 : 1 lit 140
- chambre 2 : 2 lits superposés 90
Sanitaires accessibles aux personnes à mobilité réduite (pmr) avec douche et wc
Un second wc séparé
Exposition : Est avec vue sur les montagnes
Equipements nombreux : Tv, lave vaisselle, Lave Linge, Sèche linge, four traditionnel,micro-ondes, cafetière électrique + cafetière senseo, bouilloire, grille pain, table de jardin, Pierrade...
Literies : couettes, oreillers
REMARQUES
- Un casier à skis situé niv +2 (avec sèche chaussure) est à votre disposition,
- Appartement tout équipé, (non fourni draps et linge de maison),
- Produits entretiens non fournis
- Appartement non fumeur.
- Appartement loué avec le parking couvert n°108 (hauteur max 2.08m)
- Animaux admis
- Ce logement est alimenté en éléctricité verte.
En Résumé
- EXPOSITION :
- est
- Quartiers Les Saisies :
- Centre station
- ÉTAGE PAR RAPPORT AU SOL :
- 4ème étage
- SUPERFICIE :
- 48 m²
- Capacité maximale :
- 6 personnes
- TYPE DE LOGEMENT :
- trois pièces
- trois pièces cabine
- trois pièces duplex alcôve
- ANIMAUX :
- animaux acceptés
- Type d'hébergeur :
- Professionnel
Équipements
- ÉQUIPEMENTS CUISINE :
- grille-pain
- ÉQUIPEMENTS :
- lave-linge
- ÉQUIPEMENTS MULTIMÉDIA :
- WIFI gratuit dans le logement
- WIFI gratuit dans l'espace salon (réception)
- WIFI payant dans le logement
- BÉBÉ / ENFANT :
- kit bébé (sur réservation, selon disponibilités)
Services
- ASSURANCE ANNULATION :
- Pour plus de sérénité, nous vous conseillons de souscrire à notre assurance annulation proposée au moment de votre réservation.
Localisation
Destination
Avenue des Cimes
73620
HAUTELUCE
Coordonnées GPS
Latitude : 45.758834
Longitude : 6.539374
Tarifs & Disponibilités
Avis
Note :
(2 avis)
4,5
/ 5
Mars 2022
Babeth
De 45 à 55 ans
Note :
5
/ 5
Aménagement intérieur (décoration, mobilier...)
Equipements (vaisselle et ustensiles de cuisine, électroménager...)
Confort de la literie
Entretien/ propreté
Situation géographique
Rapport qualité-prix
Avis écrit le 04/04/2022
Février 2022
mathilde
De 25 à 34 ans
En famille
Note :
4
/ 5
Aménagement intérieur (décoration, mobilier...)
Equipements (vaisselle et ustensiles de cuisine, électroménager...)
Confort de la literie
Entretien/ propreté
Situation géographique
Rapport qualité-prix
Avis écrit le 09/02/2022
Avis par type de profil
































