2 pièces / 2 pièces cabine - MOUANDA (MOU009)
Présentation
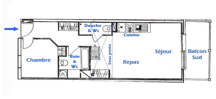
Bel appartement de 2 pièces avec sous-pente avec balcon exposé sud. Situé dans la résidence Le Mouanda dans le centre station à proximité des commerces.
|
|||||||
APPARTEMENT TYPES 2 PIECES + SOUS PENTE LOUE AVEC GARAGE (réference: MOU009)
Idéalement situé au coeur des Saisies et très ensoleillé
Surface 43m² + 5m² sous pente + Balcon sud 7m²
Etage : 3ème via escaliers sans ascenseur
Accès par l'entrée située à gauche du chalet
Couchages : 6 personnes
- séjour : 1 canapé convertible clic clac
- chambre nord : 1 lit 140
- ss pente (hmin:0.90m - hmax:1.20m sous panne et 1.60m sous toiture)(usage sous entière responsabilité des occupants, qui s'engagent à renoncer à tout type de poursuite judiciaire en cas de chute): 1 matelas 140, 1 matelas 90, accès échelle meunier, enfants interdits.
2 Salles de bains : 1 bain, 1 douche
2 wc dans chacune des salles de bains
Exposition plein Sud avec vue PANORAMIQUE sur les pistes et les montagnes
Equipements particuliers : TV, Lave vaisselle, Lave linge, four tradi, four micro-onde, plaques vitro, cafetière électrique, grille pain, appareil à raclette...
Literies : 8 oreillers, 2 petites couettes, 3 grandes couettes
REMARQUES
Appartement toute équipé, non fournis draps et linge de maison, Produits entretiens non fournis
Un casier à ski est à votre disposition
Animaux non admis, Logement non fumeur. Internet wifi.
Loué avec Garage type Box Individuel :
ATTENTION IL FAUT SE GARER EN MARCHE ARRIERE, ENTREE EN MARCHE AVANT IMPOSSIBLE.
Accès direct par l'extérieur, face au bâtiment tourner à droite (vers le lampadaire). Garage du fond celui de gauche.
ATTENTION vérifiez les dimensions:
Hauteur passage porte : 2m
Largeur passage porte : 2m40
Profondeur :5m10
Idéalement situé au coeur des Saisies et très ensoleillé
Surface 43m² + 5m² sous pente + Balcon sud 7m²
Etage : 3ème via escaliers sans ascenseur
Accès par l'entrée située à gauche du chalet
Couchages : 6 personnes
- séjour : 1 canapé convertible clic clac
- chambre nord : 1 lit 140
- ss pente (hmin:0.90m - hmax:1.20m sous panne et 1.60m sous toiture)(usage sous entière responsabilité des occupants, qui s'engagent à renoncer à tout type de poursuite judiciaire en cas de chute): 1 matelas 140, 1 matelas 90, accès échelle meunier, enfants interdits.
2 Salles de bains : 1 bain, 1 douche
2 wc dans chacune des salles de bains
Exposition plein Sud avec vue PANORAMIQUE sur les pistes et les montagnes
Equipements particuliers : TV, Lave vaisselle, Lave linge, four tradi, four micro-onde, plaques vitro, cafetière électrique, grille pain, appareil à raclette...
Literies : 8 oreillers, 2 petites couettes, 3 grandes couettes
REMARQUES
Appartement toute équipé, non fournis draps et linge de maison, Produits entretiens non fournis
Un casier à ski est à votre disposition
Animaux non admis, Logement non fumeur. Internet wifi.
Loué avec Garage type Box Individuel :
ATTENTION IL FAUT SE GARER EN MARCHE ARRIERE, ENTREE EN MARCHE AVANT IMPOSSIBLE.
Accès direct par l'extérieur, face au bâtiment tourner à droite (vers le lampadaire). Garage du fond celui de gauche.
ATTENTION vérifiez les dimensions:
Hauteur passage porte : 2m
Largeur passage porte : 2m40
Profondeur :5m10
En Résumé
- EXPOSITION :
- sud
- Quartiers Les Saisies :
- Centre station
- ÉTAGE PAR RAPPORT AU SOL :
- 3ème étage
- SUPERFICIE :
- 43 m²
- Capacité maximale :
- 6 personnes
- TYPE DE LOGEMENT :
- deux pièces
- deux pièces cabine
- ANIMAUX :
- animaux interdits
- Type d'hébergeur :
- Professionnel
Équipements
- ÉQUIPEMENTS CUISINE :
- lave-vaisselle
- grille-pain
- ÉQUIPEMENTS :
- lave-linge
- ÉQUIPEMENTS MULTIMÉDIA :
- WIFI gratuit dans le logement
Services
- ASSURANCE ANNULATION :
- Pour plus de sérénité, nous vous conseillons de souscrire à notre assurance annulation proposée au moment de votre réservation.
- SERVICES EN SUPPLÉMENT :
- location draps
- location linge de toilette
- ménage de fin de séjour
- lits faits à l'arrivée
Localisation
Destination
589 Avenue des JO
73620
HAUTELUCE
Coordonnées GPS
Latitude : 45.756388
Longitude : 6.542094
Tarifs & Disponibilités
Avis
Note :
(2 avis)
4,5
/ 5
Décembre 2023
Aude
De 35 à 44 ans
En famille
Note :
5
/ 5
Aménagement intérieur (décoration, mobilier...)
Equipements (vaisselle et ustensiles de cuisine, électroménager...)
Confort de la literie
Entretien/ propreté
Situation géographique
Rapport qualité-prix
Avis écrit le 01/01/2024
Avril 2019
Araud
De 45 à 55 ans
En famille
Note :
4
/ 5
Aménagement intérieur (décoration, mobilier...)
Equipements (vaisselle et ustensiles de cuisine, électroménager...)
Confort de la literie
Entretien/ propreté
Situation géographique
Rapport qualité-prix
Avis écrit le 17/04/2019
Avis par type de profil

































