2 pièces / 2 pièces cabine - MONT BLANC D (MTD410)
Présentation
Appartement 2 pièces avec mezzanines sous-pente et balcon exposé sud. Situé dans la résidence Mont-Blanc D dans le centre station à 100 des commerces et à proximité des pistes.
|
|||||||
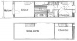
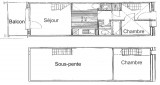
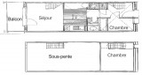
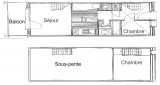
- Appartement type 2 PIECES + 2 SOUS PENTE (réference: MTD410)
- Surface : 47.10 m² ( dont 15.40 m² de surface utile à moins d'1.80 m ), + BEAU BALCON SUD : 5.25 m²,
- Etage : 2 ème,
- Accès : côté nord, escalier extérieur, un étage à monter,
- Couchages : 8
- chambre : 2 lits superposés 90,
- sous pente nord avec fenêtre: 1 lit de 140, 1 lit de 80,
- sous pente sud avec fenêtre : 2 lits de 140, 1 lit de 80,
- Salle de bains : baignoire, WC séparé, et un lavabo en ht vers la ss pente sud,
- Exposition : plein sud avec VUE FANTASTIQUE sur les pistes et le massif du BEAUFORTAIN,
- Equipements particuliers: télévision, lecteur DVD,plaque à induction, four traditionnel, lave-vaisselle, micro-ondes, cocotte minute, cafetière électrique, grille pain...
- LITERIE : 3 couettes 140, 3 couettes 90, 10 oreillers, 1 traversins 130.
- REMARQUES
- Appartement tout équipé, ( non fourni : draps et linge de maison ),
- Produits entretiens non fournis
- Un casier à skis est à votre disposition.
- Animaux tolérés.
- Surface : 47.10 m² ( dont 15.40 m² de surface utile à moins d'1.80 m ), + BEAU BALCON SUD : 5.25 m²,
- Etage : 2 ème,
- Accès : côté nord, escalier extérieur, un étage à monter,
- Couchages : 8
- chambre : 2 lits superposés 90,
- sous pente nord avec fenêtre: 1 lit de 140, 1 lit de 80,
- sous pente sud avec fenêtre : 2 lits de 140, 1 lit de 80,
- Salle de bains : baignoire, WC séparé, et un lavabo en ht vers la ss pente sud,
- Exposition : plein sud avec VUE FANTASTIQUE sur les pistes et le massif du BEAUFORTAIN,
- Equipements particuliers: télévision, lecteur DVD,plaque à induction, four traditionnel, lave-vaisselle, micro-ondes, cocotte minute, cafetière électrique, grille pain...
- LITERIE : 3 couettes 140, 3 couettes 90, 10 oreillers, 1 traversins 130.
- REMARQUES
- Appartement tout équipé, ( non fourni : draps et linge de maison ),
- Produits entretiens non fournis
- Un casier à skis est à votre disposition.
- Animaux tolérés.
En Résumé
- EXPOSITION :
- sud
- Quartiers Les Saisies :
- Centre station
- ÉTAGE PAR RAPPORT AU SOL :
- 2ème étage
- EXTÉRIEUR :
- balcon
- mobilier de jardin
- SUPERFICIE :
- 32 m²
- Capacité maximale :
- 8 personnes
- TYPE DE LOGEMENT :
- deux pièces
- deux pièces cabine
- ANIMAUX :
- animaux acceptés
- Type d'hébergeur :
- Professionnel
Descriptif détaillé
- CHAMBRE 1 :
- 2 lits superposés
- MEZZANINE :
- 1 lit(s) simple(s) 80 cm
- 1 lit(s) double(s) 140 cm
- mansardée
- SOUS-PENTE :
- 1 lit(s) simple(s) 80 cm
- 2 lit(s) double(s) 140 cm
- LITERIE :
- 10 oreiller(s)
- 1 traversin(s)
- SALLE(S) DE BAINS :
- 1 salle(s) de bains avec baignoire
- SANITAIRES :
- 1 WC séparé(s)
Équipements
- ÉQUIPEMENTS CUISINE :
- four
- plaques de cuisson
- réfrigérateur
- grille-pain
- cocotte-minute
- ÉQUIPEMENTS :
- casier à skis
Services
- ASSURANCE ANNULATION :
- Pour plus de sérénité, nous vous conseillons de souscrire à notre assurance annulation proposée au moment de votre réservation.
- SERVICES EN SUPPLÉMENT :
- location draps
- location linge de toilette
- ménage de fin de séjour
- lits faits à l'arrivée
Localisation
Destination
320 Chemin du Cristal
73620
LES SAISIES
Coordonnées GPS
Latitude : 45.756176
Longitude : 6.538668
- DISTANCES :
- 130 m du centre station Les Saisies
- 30 m des pistes de ski alpin
- 600 m des pistes de ski de fond
- 120 m d'un arrêt navette (en hiver)
Tarifs & Disponibilités
Avis
Note :
(1 avis)
4
/ 5
Mars 2020
Morgane
De 25 à 34 ans
En famille
Note :
4
/ 5
Aménagement intérieur (décoration, mobilier...)
Equipements (vaisselle et ustensiles de cuisine, électroménager...)
Confort de la literie
Entretien/ propreté
Situation géographique
Rapport qualité-prix
Avis écrit le 18/03/2020
Avis par type de profil





































