2 pièces / 2 pièces cabine - MONT BLANC D (MTD409)
Présentation
Appartement 2 pièces cabine avec balcon exposé sud. Situé dans la résidence Mont-Blanc D dans le centre station à 100 des commerces et à proximité des pistes.
|
|||||||
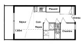
- Appartement type 2 PIECES CABINE (réference: MTD409)
- Surface : 28.90 m² ( dont 8.90 m² de surface utile à moins d'1.80 m ), + balcon Sud : 5.50 m² env,
- Etage : 2 ème ( l'entrée du chalet est nord, et au 1 er ),
- Couchages : ideal 4-toléré 6
- séjour : 1 convertible BZ en 160,
- chambre (petite) : 1 lit de 160,
- cabine : 2 lits superposés,
- Salle de bains : douche, WC séparés,
- Exposition : plein sud avec vue sur les pistes et le massif du BEAUFORTAIN,
- Equipements particuliers : téléviseur, WIFI ( sous réserve), plaque vitrocéramique, cocotte-minute, cafetière électrique, four classique ...
- LITERIE : 4 couvertures 140, 4 couvertures 90, 6 oreillers.
- REMARQUES
- Appartement tout équipé, ( non fourni : draps et linge de maison ),
- Produits entretiens non fournis
- Un casier à skis est à votre disposition.
-Animaux non admis.
- Surface : 28.90 m² ( dont 8.90 m² de surface utile à moins d'1.80 m ), + balcon Sud : 5.50 m² env,
- Etage : 2 ème ( l'entrée du chalet est nord, et au 1 er ),
- Couchages : ideal 4-toléré 6
- séjour : 1 convertible BZ en 160,
- chambre (petite) : 1 lit de 160,
- cabine : 2 lits superposés,
- Salle de bains : douche, WC séparés,
- Exposition : plein sud avec vue sur les pistes et le massif du BEAUFORTAIN,
- Equipements particuliers : téléviseur, WIFI ( sous réserve), plaque vitrocéramique, cocotte-minute, cafetière électrique, four classique ...
- LITERIE : 4 couvertures 140, 4 couvertures 90, 6 oreillers.
- REMARQUES
- Appartement tout équipé, ( non fourni : draps et linge de maison ),
- Produits entretiens non fournis
- Un casier à skis est à votre disposition.
-Animaux non admis.
En Résumé
- EXPOSITION :
- sud
- Quartiers Les Saisies :
- Centre station
- ÉTAGE PAR RAPPORT AU SOL :
- 2ème étage
- EXTÉRIEUR :
- balcon
- SUPERFICIE :
- 20 m²
- Capacité maximale :
- 4 personnes
- TYPE DE LOGEMENT :
- deux pièces
- deux pièces cabine
- ANIMAUX :
- animaux interdits
- Type d'hébergeur :
- Professionnel
Descriptif détaillé
- SÉJOUR :
- 1 banquette(s) BZ 2 pers
- CABINE :
- 2 lits superposés
- CHAMBRE 1 :
- 1 lit(s) double(s) 140 cm
- LITERIE :
- 7.00 couverture(s) simple(s)
- 7.00 couverture(s) double(s)
- 6 oreiller(s)
- SALLE(S) DE BAINS :
- 1 salle(s) de bains avec douche
- SANITAIRES :
- 1 WC séparé(s)
Équipements
- ÉQUIPEMENTS CUISINE :
- plaques de cuisson
- réfrigérateur
- grille-pain
- cocotte-minute
- ÉQUIPEMENTS :
- casier à skis
- ÉQUIPEMENTS MULTIMÉDIA :
- WIFI gratuit dans le logement
Services
- ASSURANCE ANNULATION :
- Pour plus de sérénité, nous vous conseillons de souscrire à notre assurance annulation proposée au moment de votre réservation.
- SERVICES EN SUPPLÉMENT :
- location draps
- location linge de toilette
- ménage de fin de séjour
- lits faits à l'arrivée
Localisation
Destination
320 Chemin du Cristal
73620
LES SAISIES
Coordonnées GPS
Latitude : 45.756176
Longitude : 6.538668
- DISTANCES :
- 130 m du centre station Les Saisies
- 30 m des pistes de ski alpin
- 600 m des pistes de ski de fond
- 120 m d'un arrêt navette (en hiver)
Tarifs & Disponibilités
Avis
Note :
(5 avis)
3,6
/ 5
Janvier 2022
Jean Claude
Plus de 55 ans
En couple
Note :
4
/ 5
Aménagement intérieur (décoration, mobilier...)
Equipements (vaisselle et ustensiles de cuisine, électroménager...)
Confort de la literie
Entretien/ propreté
Situation géographique
Rapport qualité-prix
Avis écrit le 26/01/2022
Mars 2021
pascal
Plus de 55 ans
En famille
Note :
4
/ 5
Aménagement intérieur (décoration, mobilier...)
Equipements (vaisselle et ustensiles de cuisine, électroménager...)
Confort de la literie
Entretien/ propreté
Situation géographique
Rapport qualité-prix
Avis écrit le 22/03/2021
Avis par type de profil





































