2 pièces / 2 pièces cabine - EGLANTINE (EGL003)
Présentation
Appartement 2 pièces dans le chalet Eglantine situé dans le quartier des Haut-s-Lieux aux Saisies. Situé à 200m des pistes de ski et 500m du centre station.
|
|||||||
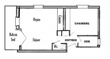
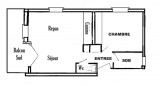
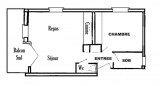
Appartement T2 de 30m² disposant d'un balcon de 5/6m². Ce logement dispose d'un box pour votre véhicule dans le garage des Hauts-lieux n°16. Secteur calme et agréable à quelques mètres d'un accès au domaine alpin.
Classé en meublé de tourisme 1 étoile
Etage: 1er étage
Couchages: 6
- Séjour: 1 convertible, 1 banquette 1 pers
- Chambre: 2 lits superposés, 1 lit tiroir,
- Salle de bains: petite baignoire, WC séparés,
Exposition: plein sud avec très jolie vue sur les pistes et le massif du Beaufortain
Remarques:
Equipements particuliers : téléviseur, lave vaisselle, cocotte minute, cafetière électrique, grille pain, fer à repasser, four micro-ondes, four traditionnel, service à raclette, salon de jardin,...
Literie :6 oreillers, 1 couette 140, 3 couettes 90.
Appartement tout équipé, ( non fourni : draps et linge de maison ),
Produits entretiens non fournis
Accès à 50 mètres de la chaussée déneigée,
Animaux non admis,
Un casier à skis est à votre disposition.
Classé en meublé de tourisme 1 étoile
Etage: 1er étage
Couchages: 6
- Séjour: 1 convertible, 1 banquette 1 pers
- Chambre: 2 lits superposés, 1 lit tiroir,
- Salle de bains: petite baignoire, WC séparés,
Exposition: plein sud avec très jolie vue sur les pistes et le massif du Beaufortain
Remarques:
Equipements particuliers : téléviseur, lave vaisselle, cocotte minute, cafetière électrique, grille pain, fer à repasser, four micro-ondes, four traditionnel, service à raclette, salon de jardin,...
Literie :6 oreillers, 1 couette 140, 3 couettes 90.
Appartement tout équipé, ( non fourni : draps et linge de maison ),
Produits entretiens non fournis
Accès à 50 mètres de la chaussée déneigée,
Animaux non admis,
Un casier à skis est à votre disposition.
En Résumé
- EXPOSITION :
- sud
- Quartiers Les Saisies :
- Quartier des Hauts-Lieux
- ÉTAGE PAR RAPPORT AU SOL :
- 1er étage
- SUPERFICIE :
- 30 m²
- Capacité maximale :
- 6 personnes
- TYPE DE LOGEMENT :
- deux pièces
- deux pièces cabine
- ANIMAUX :
- animaux interdits
- Type d'hébergeur :
- Professionnel
Équipements
- ÉQUIPEMENTS CUISINE :
- lave-vaisselle
- grille-pain
Services
- ASSURANCE ANNULATION :
- Pour plus de sérénité, nous vous conseillons de souscrire à notre assurance annulation proposée au moment de votre réservation.
- SERVICES EN SUPPLÉMENT :
- location draps
- location linge de toilette
- ménage de fin de séjour
- lits faits à l'arrivée
Localisation
Destination
Les Saisies
73620
HAUTELUCE
Coordonnées GPS
Latitude : 45.757550
Longitude : 6.543625

































