2 pièces / 2 pièces cabine - CHALET AMELIE (AMEL04)
Présentation
Appartement 2 pièces cabine situé dans la résidence Chalet d'Amélie, quartier de la forêt. A 250m des pistes et 2km du centre station.
BONS PLANS AVEC LES SAISIES RÉSERVATIONAJOUTEZ AU PANIER VOTRE HÉBERGEMENT ET PROFITEZ DE REMISES DE -10 à 30% ! |
|
| ❄️HIVER : | Forfaits de ski, location de matériel, cours de ski, centre aquatique/spa, sorties en raquettes |
| ☀️ÉTÉ : | Pass loisirs, forfaits VTT, forfaits piéton, randonnées guidées |
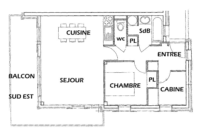
- APPARTEMENT type 2 PIECES + CABINE 1 SALLE DE BAIN,(réference: AMEL04)
- Surface : 42,81 m², balcon sud est et est nord-est : 13,78 m²,
- Etage : 1er étage,
- Couchages : 6 / 7
- Séjour : 1 canapé lit 2 places 140,
- Chambre : 1 lit 160x200,
- Cabine : 1 lit de 140*190+1 lit superposé 80*190
- Salle de bain : baignoire, 1 WC séparé,
- Exposition : SUD EST et EST NORD-EST avec vue bucolique sur la station, la forêt et la chapelle,
- Equipements particuliers : télévision LCD, lave vaisselle, lave linge, four micro ondes, plaques vitro céramiques 3 feux, cafetière électrique, appareil à raclette, grille pain...
- LITERIE: 8 oreillers, 1 couverture 160, 2 couverture 140, 1 couettes 90, 3 couette 140.
- REMARQUES
- Appartement tout équipé, (non fourni : draps et linge de maison), Produits entretiens non fournis
- Un casier à skis est à votre disposition,
- Appartement non fumeur
- Animaux refusés
- Surface : 42,81 m², balcon sud est et est nord-est : 13,78 m²,
- Etage : 1er étage,
- Couchages : 6 / 7
- Séjour : 1 canapé lit 2 places 140,
- Chambre : 1 lit 160x200,
- Cabine : 1 lit de 140*190+1 lit superposé 80*190
- Salle de bain : baignoire, 1 WC séparé,
- Exposition : SUD EST et EST NORD-EST avec vue bucolique sur la station, la forêt et la chapelle,
- Equipements particuliers : télévision LCD, lave vaisselle, lave linge, four micro ondes, plaques vitro céramiques 3 feux, cafetière électrique, appareil à raclette, grille pain...
- LITERIE: 8 oreillers, 1 couverture 160, 2 couverture 140, 1 couettes 90, 3 couette 140.
- REMARQUES
- Appartement tout équipé, (non fourni : draps et linge de maison), Produits entretiens non fournis
- Un casier à skis est à votre disposition,
- Appartement non fumeur
- Animaux refusés
En Résumé
- EXPOSITION :
- sud est
- est
- nord est
- Quartiers Les Saisies :
- Quartier de la forêt
- ÉTAGE PAR RAPPORT AU SOL :
- 1er étage
- EXTÉRIEUR :
- balcon
- SUPERFICIE :
- 43 m²
- Capacité maximale :
- 7 personnes
- TYPE DE LOGEMENT :
- deux pièces
- deux pièces cabine
- appartement
- ANIMAUX :
- animaux interdits
- Type d'hébergeur :
- Professionnel
Descriptif détaillé
- SÉJOUR :
- 1 canapé lit convertible 2 personnes
- CABINE :
- 1 lits superposés
- 1 lit(s) double(s) 140 cm
- CHAMBRE 1 :
- 1 lit(s) double(s) 160 cm
- LITERIE :
- 8 oreiller(s)
- SALLE(S) DE BAINS :
- 1 salle(s) de bains avec baignoire
- SANITAIRES :
- 1 WC séparé(s)
Équipements
- ÉQUIPEMENTS CUISINE :
- plaques vitrocéramiques
- lave-vaisselle
- grille-pain
- service à raclette
- combiné four micro-ondes
- appareil à raclette
- ÉQUIPEMENTS :
- casier à skis
- ÉQUIPEMENTS MULTIMÉDIA :
- télévision écran plat dans le séjour
- BÉBÉ / ENFANT :
- lit bébé avec supplément
- chaise bébé avec supplément
- baignoire bébé en supplément
Services
- ASSURANCE ANNULATION :
- Pour plus de sérénité, nous vous conseillons de souscrire à notre assurance annulation proposée au moment de votre réservation.
- SERVICES EN SUPPLÉMENT :
- location draps
- location linge de toilette
- ménage de fin de séjour
- lits faits à l'arrivée
Localisation
Destination
Les Saisies
73270
VILLARD SUR DORON
Coordonnées GPS
Latitude : 45.747401
Longitude : 6.540560
Tarifs & Disponibilités
Avis
Note :
(3 avis)
4,67
/ 5
Février 2025
claire
De 35 à 44 ans
En famille
Note :
5
/ 5
Aménagement intérieur (décoration, mobilier...)
Equipements (vaisselle et ustensiles de cuisine, électroménager...)
Confort de la literie
Entretien/ propreté
Situation géographique
Rapport qualité-prix
Avis écrit le 19/02/2025
Décembre 2023
CLAIRE
De 45 à 55 ans
En famille
Note :
4
/ 5
Aménagement intérieur (décoration, mobilier...)
Equipements (vaisselle et ustensiles de cuisine, électroménager...)
Confort de la literie
Entretien/ propreté
Situation géographique
Rapport qualité-prix
Avis écrit le 01/01/2024
Avis par type de profil





































